Dpt paris (75), à vendre paris 3eme arrondissement appartement t2 de 55 m²

— Paris-3e 75003 —
569 000 €
55 m²
2 pièces

Situé dans la pittoresque rue des Gravilliers à deux pas de la station Arts et Métiers, je vous invite à découvrir cet ancien atelier et vous laissez emporter par le charme de sa verrière, de ses poutres et ses pierres de taille apparentes.
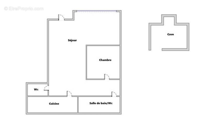
Il se compose d'une grande pièce à vivre de 36m², une cuisine, une salle de bain avec baignoire, douche et wc, un espace nuit, un wc séparé. 2 caves dont une directement accessible dans la pièce à vivre. Au calme en rez-de-chaussée sur cours.
Travaux de rénovation à prévoir.

A proximité du centre Beaubourg, de la place de la république et des halles vous êtes au coeur de Paris.
Stations de métro : Arts et Métiers-lignes 3, 11. Etienne Marcel-lignes 4.
Lignes de bus 20,29,38

Nombre de lots de la copropriété : 35, Montant moyen annuel de la quote-part de charges (budget prévisionnel)(Provision) : 1020€ soit 85€ par mois. Les honoraires d'agence sont à la charge de l'acquéreur, soit 3,45% TTC du prix hors honoraires.
Logement à consommation énergétique excessive : classe F
Les informations sur les risques auxquels ce bien est exposé sont disponibles sur le site Géorisques : www. georisques. gouv. fr.

Réseau Immobilier CAPIFRANCE - Votre agent commercial (RSAC N°531 686 111 - Greffe de CRETEIL) Francis MARGNOUX Entrepreneur Individuel [Coordonnées masquées] - Réf.894652
Voir plus

Référence: 340936948915
Bien en copropriété. Nombre de lots : 35. Charges de copropriété : 85 €.
DPE
A
B
C
D
E
F
G
GES
A
B
C
D
E
F
G

Prêt immobilier

Vous souhaitez connaître votre capacité d’emprunt et trouver le meilleur crédit immobilier ?
Réaliser une simulation gratuite

Appartement à PARIS-3E
Appartement à PARIS-3E
Appartement à PARIS-3E
Appartement à PARIS-3E
Appartement à PARIS-3E
Appartement à PARIS-3E
Appartement à PARIS-3E
Appartement à PARIS-3E
Appartement à PARIS-3E
Ce site est protégé par reCAPTCHA la Politique de confidentialité et les Conditions d’utilisation de Google s’appliquent.
Obtenir un prêt immobilier au meilleur taux ?

En poursuivant votre navigation sans modifier vos paramètres, vous acceptez l'utilisation de cookies susceptibles de réaliser des statistiques de visite. Cliquez ici pour plus d'informations