Bénéficiez des services de nos partenaires locaux soigneusement sélectionnés
pour vous accompagner dans votre parcours d'achat immobilier

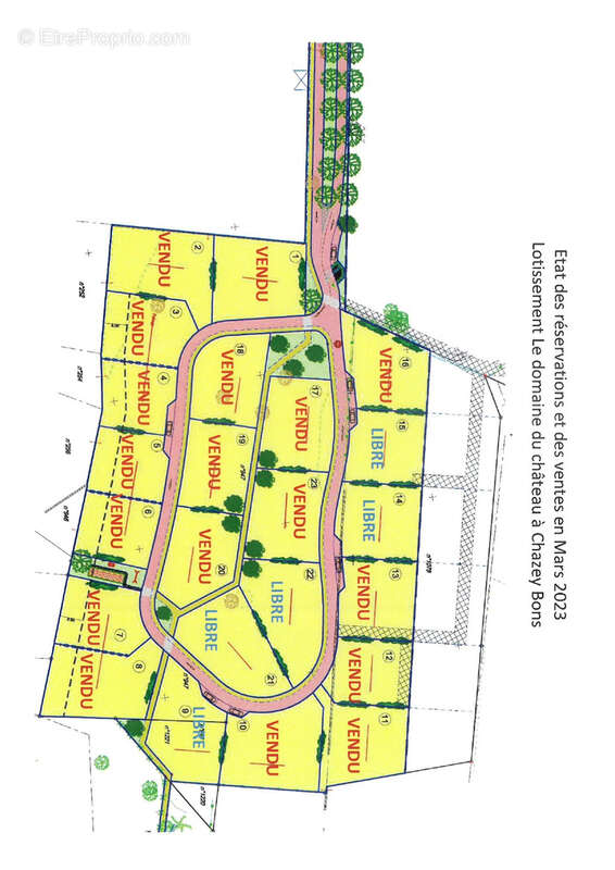
Terrain constructible de 823 m2 lot 22

— Chazey-Bons 01300 —
108 000 €
823 m²
jardin

Nos partenaires locaux
Votre agence IMMO CONNECTION vous propose à la vente ce terrain viabilisé de 823 m2 dans un lotissement haut de gamme 'Domaine du chateau' sur la commune de Chazey bons à 3min du centre ville de Belley. Terrain viabilisé et libre de tout constructeur.
Alors n'hésitez plus et contacter IMMO CONNECTION pour organiser une visite ! Les honoraires sont à la charge vendeur. Les informations sur les risques auxquels ce bien est exposées sont disponibles sur le site Géorisques : www.georisques.gouv.fr.
Cette annonce vous est proposée par SERPINET Jimmy - - NoRSAC: 951220482, Enregistré au Greffe du tribunal de commerce de bourg-en-bresse
Voir plus

Référence: 140
Honoraires à la charge du vendeur.
Barème des honoraires

Prêt immobilier

Vous souhaitez connaître votre capacité d’emprunt et trouver le meilleur crédit immobilier ?
Réaliser une simulation gratuite

Terrain à CHAZEY-BONS
Terrain à CHAZEY-BONS
Terrain à CHAZEY-BONS
Terrain à CHAZEY-BONS
Ce site est protégé par reCAPTCHA la Politique de confidentialité et les Conditions d’utilisation de Google s’appliquent.
Obtenir un prêt immobilier au meilleur taux ?

En poursuivant votre navigation sans modifier vos paramètres, vous acceptez l'utilisation de cookies susceptibles de réaliser des statistiques de visite. Cliquez ici pour plus d'informations