Bénéficiez des services de nos partenaires locaux soigneusement sélectionnés
pour vous accompagner dans votre parcours d'achat immobilier

Immeuble 3 appartements centre ville

— Pont-Saint-Esprit 30130 —
130 000 €
140 m²
7 pièces
parkingbalcon/terrasse

Nos partenaires locaux
REF 3684LB : Pont-Saint-Esprit
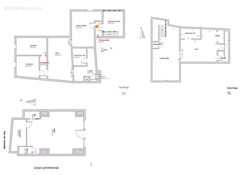
Ensemble immobilier avec une belle rentabilité en centre ville proche des parking en angle de rue, idéal investisseur, à proximité du parking de la bourse

Composé de 3 lots avec des entrées indépendantes, compteur d'eau et électrique individuel

- au 1er étage : 1 T3 d'environ 78m² au sol (presque 63m² loi carrez)

- au 2ème étage : 1 T2 d'environ 72m² au sol (Prévoir de légers travaux). Presque 45m² loi carrez.
Une terrasse commune et un local technique leur sont attribués.

- au RDC : Un local commercial d'environ 30m²

Revenu locatif brut potentiel : 18000€ soit une rentabilité de plus de 11% après quelques travaux énergétiques.

Immeuble de rapport à venir visiter sans tarder, idéal investisseur souhaitant avoir une petite enveloppe travaux à déduire.

Plan non contractuel
Petite copropriété de 5 lots
Aucune charge de copropriété
Pas de procédure en cours
Voir plus

Référence: 85671931
DPE
A
B
C
D
E
F
G
GES
A
B
C
D
E
F
G
Appartement à PONT-SAINT-ESPRIT
Appartement à PONT-SAINT-ESPRIT
Appartement à PONT-SAINT-ESPRIT
Appartement à PONT-SAINT-ESPRIT
Appartement à PONT-SAINT-ESPRIT
Appartement à PONT-SAINT-ESPRIT
Appartement à PONT-SAINT-ESPRIT
Appartement à PONT-SAINT-ESPRIT
Appartement à PONT-SAINT-ESPRIT
Appartement à PONT-SAINT-ESPRIT
Appartement à PONT-SAINT-ESPRIT
Appartement à PONT-SAINT-ESPRIT
Appartement à PONT-SAINT-ESPRIT
Géorisques

Les informations sur les risques auxquels ce bien est exposé sont disponibles sur le site Géorisques : www.georisques.gouv.fr

Ce site est protégé par hCaptcha Politique de confidentialité et Conditions d’utilisation s’appliquent.

En poursuivant votre navigation sans modifier vos paramètres, vous acceptez l'utilisation de cookies susceptibles de réaliser des statistiques de visite. Cliquez ici pour plus d'informations