Bénéficiez des services de nos partenaires locaux soigneusement sélectionnés
pour vous accompagner dans votre parcours d'achat immobilier

Commerce 119m² à nantes

— Nantes 44000 —
207 100 €
119 m² / 177 m²
2 pièces
balcon/terrasse

Nos partenaires locaux
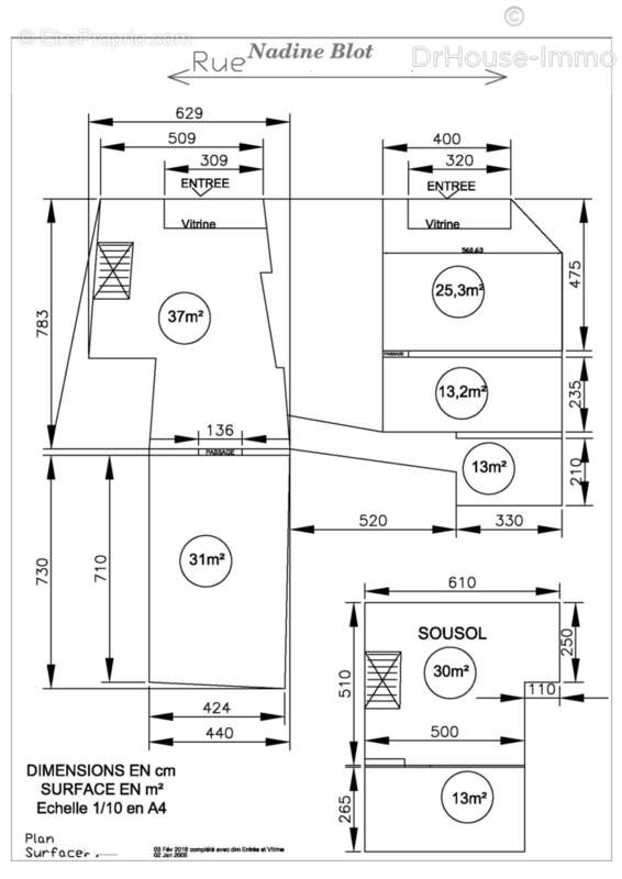
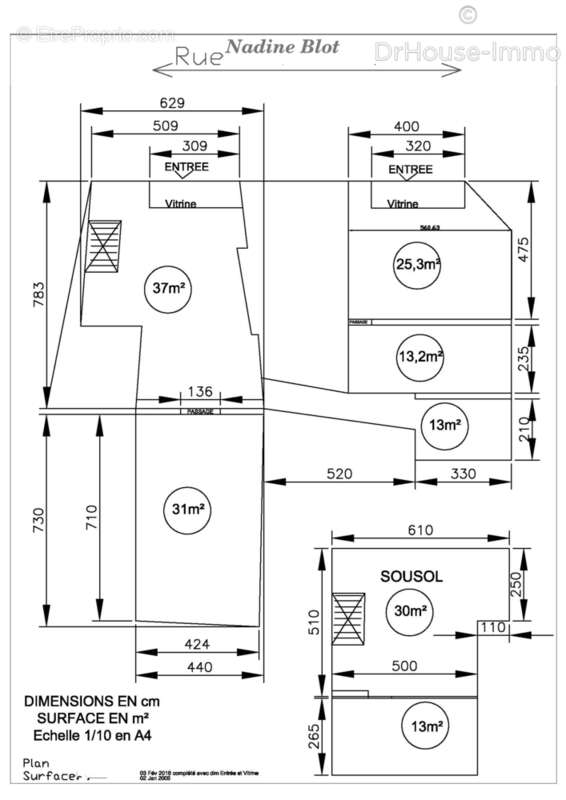
Dans l'hyper centre de NANTES, dans un quartier très animé et dynamique. Affaire à développer car une seule des deux boutiques est exploitée pour des raisons de cessation d'activité. Pas de salariés. Cet établissement de 119m² se trouve en RDC d'un immeuble ancien. Il comprend deux espaces commerciaux. Une salle de 31m² (à usage d'épicerie) et salle avec table (37m², une chambre froide, 2 réserves, un espace toilettes avec lavabo, une grande cave (43m²) en sous-sol. Chaque boutique dispose de sa vitrine. Le fonds de commerce est exploité par une seule personne avec activité d'épicerie fine, de petite restauration sur place et à emporter, avec licences II et III, vente de tout d'alcool sur place et à emporter. Clientèle de particulier et de professionnels. Une seconde activité est possible (toute activité sauf nuisance).
Possibilité de 40 places assises à l'intérieur et 45 à 50 en terrasse.
Pas de personnel à reprendre.
Horaires d'ouverture actuels de 10h30 à 19h en semaine et jusqu'à 9h30 le week-end, possibilité d'ouvrir de 7h30 à 1h30 du matin.
CA 131118€
Loyer mensuel de 2286 € ttc. Taxe foncière de 2068€.
Belle affaire avec fort potentiel à découvrir rapidement. Ce bien vous est présenté par Nadine Blot , votre conseiller indépendant Dr House Immo.
Voir plus

Référence: 86070DHI1770
Honoraires d'agence de 9% à la charge de l'acquéreur
Barème des honoraires

Prêt immobilier

Vous souhaitez connaître votre capacité d’emprunt et trouver le meilleur crédit immobilier ?
Réaliser une simulation gratuite

Commerce à NANTES
Commerce à NANTES
Commerce à NANTES
Commerce à NANTES
Commerce à NANTES
Commerce à NANTES
Commerce à NANTES
Commerce à NANTES
Commerce à NANTES
Commerce à NANTES
Commerce à NANTES
Commerce à NANTES
Commerce à NANTES
Commerce à NANTES
Commerce à NANTES
Commerce à NANTES
Commerce à NANTES
Commerce à NANTES
Commerce à NANTES
Commerce à NANTES
Commerce à NANTES
Commerce à NANTES
Commerce à NANTES
Commerce à NANTES
Commerce à NANTES
Commerce à NANTES
Commerce à NANTES
Commerce à NANTES
Commerce à NANTES
Commerce à NANTES
Commerce à NANTES
Commerce à NANTES
Commerce à NANTES
Commerce à NANTES
Commerce à NANTES
Commerce à NANTES
Commerce à NANTES
Commerce à NANTES
Commerce à NANTES
Commerce à NANTES
Ce site est protégé par reCAPTCHA la Politique de confidentialité et les Conditions d’utilisation de Google s’appliquent.
Obtenir un prêt immobilier au meilleur taux ?

En poursuivant votre navigation sans modifier vos paramètres, vous acceptez l'utilisation de cookies susceptibles de réaliser des statistiques de visite. Cliquez ici pour plus d'informations