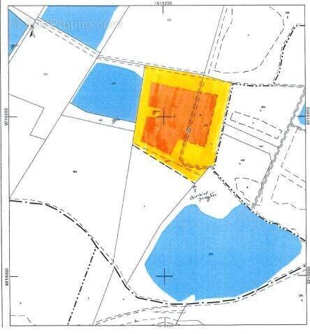
Terrain 12753m² à cambron

— Cambron 80132 —
86 000 €
12 753 m²

L'agence PLACE DE L'IMMO, vous propose sur la commune de CAMBRON :

Un terrain d'environ 12 000m² avec étang de 8000m² ainsi qu'une hutte immatriculée. (attestation fournie)

Pour plus de renseignements, n'hésitez pas à contacter l'agence.

Honoraires à la charge du vendeur.
Les informations sur les risques auxquels ce bien est exposé sont disponibles sur le site Géorisques : georisques.gouv.fr.

Votre conseiller PLACE DE L'IMMO : President - Christophe DEVAUCHELLE
Carte T CPI80[Coordonnées masquées]00002

Voir plus

Référence: AG246-VT101-PLACE
Honoraires à la charge du vendeur.

Prêt immobilier

Vous souhaitez connaître votre capacité d’emprunt et trouver le meilleur crédit immobilier ?
Réaliser une simulation gratuite

Ce site est protégé par reCAPTCHA la Politique de confidentialité et les Conditions d’utilisation de Google s’appliquent.
Obtenir un prêt immobilier au meilleur taux ?

En poursuivant votre navigation sans modifier vos paramètres, vous acceptez l'utilisation de cookies susceptibles de réaliser des statistiques de visite. Cliquez ici pour plus d'informations