Bénéficiez des services de nos partenaires locaux soigneusement sélectionnés
pour vous accompagner dans votre parcours d'achat immobilier

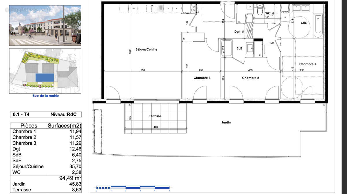
Dardilly, t4 de 95 m2 avec jardin.

— Dardilly 69570 —
430 000 €
95 m²
4 pièces
parkingbalcon/terrasse

Nos partenaires locaux
Appartement T4 Un cadre de vie idéal avec jardin et terrasse !
Située à Dardilly, cette appartement T4 de 94,49 m2 offre un environnement calme et agréable, parfait pour une vie de famille.
Ses atouts :Une pièce de vie spacieuse de 36 m2 avec cuisine ouverte3 chambres confortables .Une salle de bain + une salle d’eau pour plus de confortUn WC indépendant
Extérieur : Profitez d’un jardin de 46 m2 et d’une terrasse pour des moments de détente en plein air.
Un garage en sous sol et une cave .
Charge de copropriété : Environ 140 euros par mois.
Surface : 95 m2
Prix du bien : 430 000 € Honoraires à la charge du vendeur
Contactez dès à présent Adrien Clerc Tel o6/22/98/94/36.
Statut négociateur : Agent commercial.
Prix de vente affiché frais d'agence inclus,honoraires à la charge du vendeur.
Voir plus

Bien en copropriété.
Honoraires à la charge du vendeur.
Barème des honoraires
DPE
A
B
C
D
E
F
G
GES
A
B
C
D
E
F
G

Prêt immobilier

Vous souhaitez connaître votre capacité d’emprunt et trouver le meilleur crédit immobilier ?
Réaliser une simulation gratuite

Appartement à DARDILLY
Appartement à DARDILLY
Appartement à DARDILLY
Appartement à DARDILLY
Appartement à DARDILLY
Appartement à DARDILLY
Appartement à DARDILLY
Appartement à DARDILLY
Ce site est protégé par reCAPTCHA la Politique de confidentialité et les Conditions d’utilisation de Google s’appliquent.
Obtenir un prêt immobilier au meilleur taux ?

En poursuivant votre navigation sans modifier vos paramètres, vous acceptez l'utilisation de cookies susceptibles de réaliser des statistiques de visite. Cliquez ici pour plus d'informations