Bénéficiez des services de nos partenaires locaux soigneusement sélectionnés
pour vous accompagner dans votre parcours d'achat immobilier

Vente de terrain à bâtir à erquy

— Erquy 22430 —
56 000 €
255 m²

Nos partenaires locaux
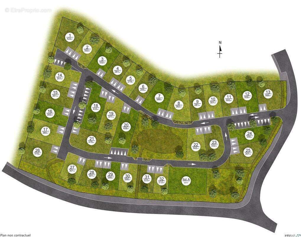
TERRAINS CONSTRUCTIBLES DANS LA COMMUNE DE ERQUY, COTES-D'ARMOR (22)

Programme "Bel Air" :
40 logements minimum dont :
- 25 lots libres de constructeur
- 5 lots en primo-accession
- 2 lots en accession sociale
- 8 logements sociaux

Surfaces et prix des terrains :
- De 255m² à 476m²
- A partir de 56 000 €

Commodités :
- Education : 2 écoles maternelles, 2 écoles élémentaires, un collège, un lycée à Lamballe-Armor, 22min (20km)
- Commerces : Boulangeries, restaurants, épicerie, hôtels, hypermarché et supermarché
- Services de santé : Médecins et pharmacies
- Transports et loisirs : Aéroport de Dinard-Pleurtuit à 38min (34km) et la gare SNCF de Landébia à 21min (34km)
- Accès aux villes de Saint-Malo en 54min (45km) et Rennes en 1h20 (95km)

Erquy est une commune située sur la côte nord de la Bretagne, dans le département des Côtes-d'Armor. Elle est connue pour ses belles plages de sable fin, ses falaises impressionnantes et son port animé.
Voir plus

Référence: VAT.ERQUY.BELAIR.22

Prêt immobilier

Vous souhaitez connaître votre capacité d’emprunt et trouver le meilleur crédit immobilier ?
Réaliser une simulation gratuite

Terrain à ERQUY
Terrain à ERQUY
Ce site est protégé par reCAPTCHA la Politique de confidentialité et les Conditions d’utilisation de Google s’appliquent.
Obtenir un prêt immobilier au meilleur taux ?

En poursuivant votre navigation sans modifier vos paramètres, vous acceptez l'utilisation de cookies susceptibles de réaliser des statistiques de visite. Cliquez ici pour plus d'informations