Bénéficiez des services de nos partenaires locaux soigneusement sélectionnés
pour vous accompagner dans votre parcours d'achat immobilier

Appartement 41m² à paris 18e arrondissement

— Paris-18e 75018 —
352 000 €
41 m²
1 pièce

Nos partenaires locaux
Rue Guy-Môquet , proche de la ligne 13/14, du parc Martin Luther King et du village des Batignolles.

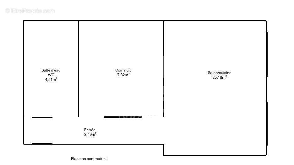
Dans un immeuble récent, au premier étage par ascenseur, découvrez un grand studio aménagé en 2 pièces.
Un rafraîchissement est à prévoir.

Il dispose d'une entrée qui dessert toutes les pièces:
Une pièce de vie de 25m² sur rue exposée NORD-OUEST avec cuisine ouverte aménagée et équipée; un espace nuit de 8m² et une salle d'eau avec WC.

Le chauffage électrique est individuel, l'eau chaude est collective avec chaudière.
Comptez 260€ de charges mensuelles et 1016 € de Taxe foncière. Une cave complète ce bien.
Contactez-nous: ERA Batignolles 97bis rue Legendre 75017 PARIS
Mail: [Coordonnées masquées] Tél: [Coordonnées masquées]
L'Etat des Risques et Pollution peut être consulté sur https://www.georisques.gouv.fr
Voir plus

Référence: 4218
DPE
A
B
C
D
E
F
G
GES
A
B
C
D
E
F
G

Prêt immobilier

Vous souhaitez connaître votre capacité d’emprunt et trouver le meilleur crédit immobilier ?
Réaliser une simulation gratuite

Appartement à PARIS-18E
Appartement à PARIS-18E
Appartement à PARIS-18E
Appartement à PARIS-18E
Appartement à PARIS-18E
Appartement à PARIS-18E
Appartement à PARIS-18E
Appartement à PARIS-18E
Appartement à PARIS-18E
Appartement à PARIS-18E
Ce site est protégé par reCAPTCHA la Politique de confidentialité et les Conditions d’utilisation de Google s’appliquent.
Obtenir un prêt immobilier au meilleur taux ?

En poursuivant votre navigation sans modifier vos paramètres, vous acceptez l'utilisation de cookies susceptibles de réaliser des statistiques de visite. Cliquez ici pour plus d'informations