Nice mont boron – 3 pièces de 54 m² avec terrasse vue mer et garage

— Nice 06300 —
550 000 €
54 m²
3 pièces
parkingbalcon/terrasseascenseur

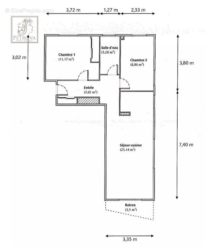
Découvrez ce magnifique appartement de 3 pièces de 54 m², idéalement situé dans le secteur prisé de Mont Boron. Niché dans une résidence de standing, il offre un cadre de vie agréable avec des espaces lumineux et bien agencés.

Ses atouts:
- dans le séjour: une belle terrasse avec une vue mer verdoyante, au calme absolu à l'exception du chant des oiseaux!
- un grand garage fermé au 1er sous sol de l'immeuble!

La pièce de vie accueillante s’ouvre sur une cuisine moderne, créant un espace convivial et fonctionnel.
L’appartement dispose de deux chambres confortables ainsi que d’une salle d’eau élégante avec une douche moderne.

Côté rangement, une cave complète ce bien.

Un garage fermé complète le bien , ainsi qu'une cave.

Contactez-nous pour organiser une visite ou obtenir plus d’informations.

Prix : 550 000 euros F.A.I. à la charge du vendeur.

Bien soumis au statut de la copropriété. Nombre de lots : 28
Les informations sur les risques auxquels ce bien est exposé sont disponibles sur le site Géorisques : georisques.gouv.fr
Voir plus

Référence: 396 LP
DPE
A
B
C
D
E
F
G
GES
A
B
C
D
E
F
G

Prêt immobilier

Vous souhaitez connaître votre capacité d’emprunt et trouver le meilleur crédit immobilier ?
Réaliser une simulation gratuite

Appartement à NICE
Appartement à NICE
Appartement à NICE
Appartement à NICE
Appartement à NICE
Appartement à NICE
Appartement à NICE
Appartement à NICE
Appartement à NICE
Appartement à NICE
Appartement à NICE
Appartement à NICE
Appartement à NICE
Appartement à NICE
Appartement à NICE
Appartement à NICE
Appartement à NICE
Appartement à NICE
Appartement à NICE
Appartement à NICE
Appartement à NICE
Ce site est protégé par reCAPTCHA la Politique de confidentialité et les Conditions d’utilisation de Google s’appliquent.
Obtenir un prêt immobilier au meilleur taux ?

En poursuivant votre navigation sans modifier vos paramètres, vous acceptez l'utilisation de cookies susceptibles de réaliser des statistiques de visite. Cliquez ici pour plus d'informations