Bénéficiez des services de nos partenaires locaux soigneusement sélectionnés
pour vous accompagner dans votre parcours d'achat immobilier

Maison familiale de plain-pied à dampmart !

— Dampmart 77400 —
410 000 €
90 m²
5 pièces
balcon/terrassejardin

Nos partenaires locaux
Venez découvrir en plein cœur de Dampmart cette maison familiale de plain pied !
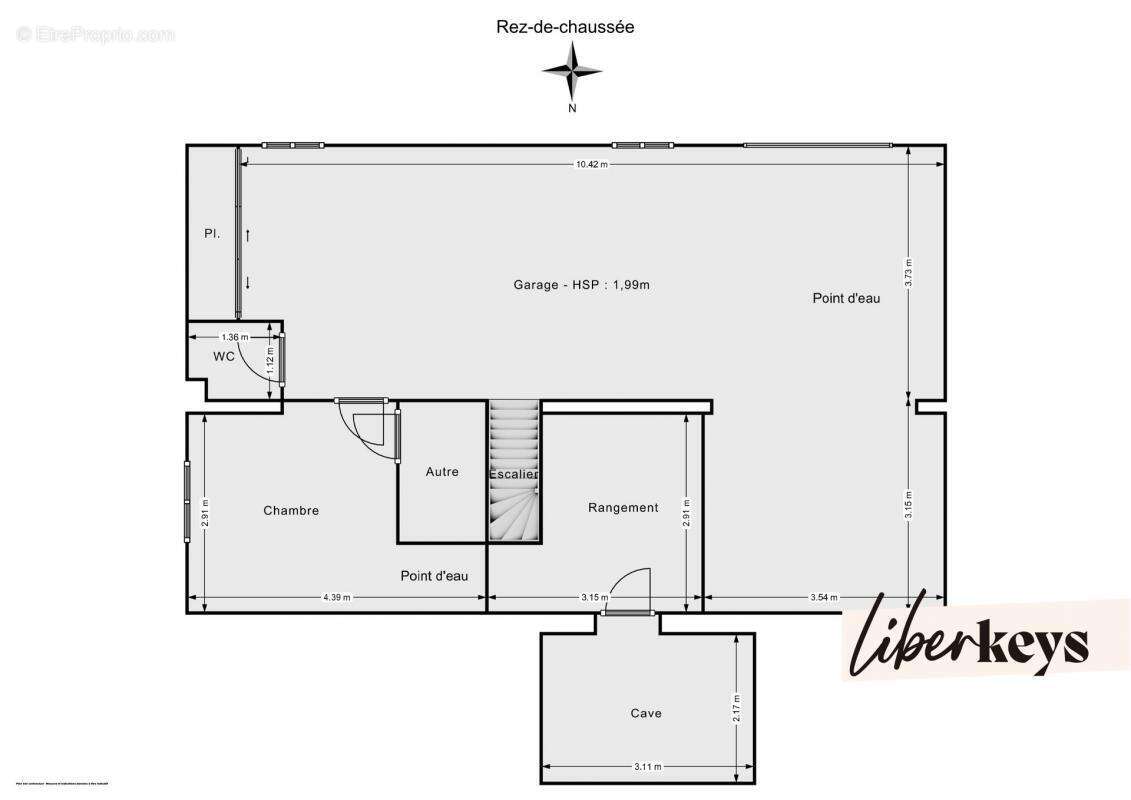
Sur élevé sur un sous-sol total divisé en trois pièces : garage/atelier , une chambre avec un point d'eau, une cave à vin et des WC, le sous-sol offre la possibilité d'aménager un petit studio.
La maison est composée d'un salon / séjour avec cheminée, d'une cuisine ouverte, de trois chambres, d'un WC et d'une salle de bains avec baignoire.
Le tout sur un terrain arboré et clos de 879 m2.
- Proche des commodités et des écoles ( possibilité de s'y rendre à pied)
- Secteur uniquement pavillonnaire
- Très bonne orientation de la maison
- Beau jardin arboré
- chaudière neuve (décembre 2023)
- taxe foncière : 891 €/an
Les DPE sont en cours de ré évaluation .

**** Ce bien vous plaît ? Appelez l'agent Liberkeys Charlotte den Bekker enregistrée au RSAC sous le numéro 2020AC00428 pour échanger sur ce bien. Liberkeys, votre agence immobilière en mieux. Humaine, transparente et réactive pour les vendeurs et acheteurs. Honoraires charge vendeur. Les informations sur les risques auxquels ce bien est exposé sont disponibles sur le site Géorisques : www.georisques.gouv.fr. I
Voir plus

Référence: DOM3737
Honoraires à la charge du vendeur.
DPE
A
B
C
D
E
F
G
GES
A
B
C
D
E
F
G

Prêt immobilier

Vous souhaitez connaître votre capacité d’emprunt et trouver le meilleur crédit immobilier ?
Réaliser une simulation gratuite

Maison à DAMPMART
Maison à DAMPMART
Maison à DAMPMART
Maison à DAMPMART
Maison à DAMPMART
Maison à DAMPMART
Maison à DAMPMART
Maison à DAMPMART
Maison à DAMPMART
Maison à DAMPMART
Maison à DAMPMART
Maison à DAMPMART
Maison à DAMPMART
Ce site est protégé par reCAPTCHA la Politique de confidentialité et les Conditions d’utilisation de Google s’appliquent.
Obtenir un prêt immobilier au meilleur taux ?

En poursuivant votre navigation sans modifier vos paramètres, vous acceptez l'utilisation de cookies susceptibles de réaliser des statistiques de visite. Cliquez ici pour plus d'informations