Bénéficiez des services de nos partenaires locaux soigneusement sélectionnés
pour vous accompagner dans votre parcours d'achat immobilier

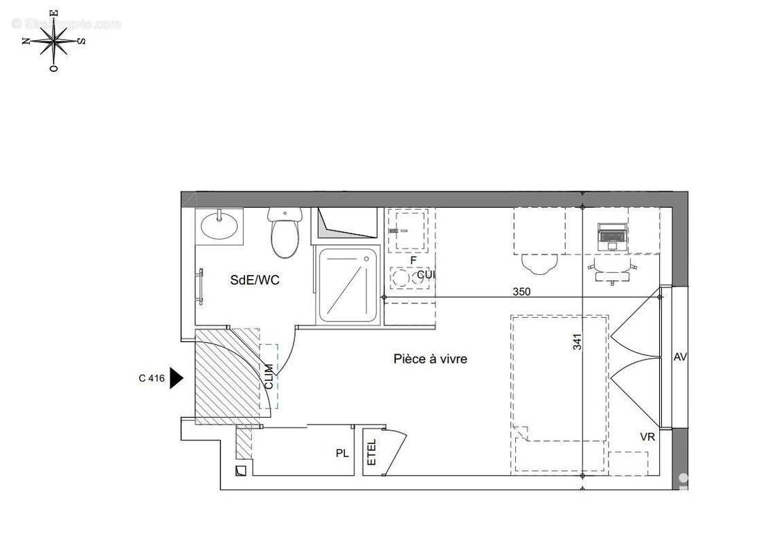
Appartement 18m² à la valette-du-var

— La Valette-Du-Var 83160 —
108 318 €
18 m²
1 pièce

Nos partenaires locaux
Iad France - Guillaume Sueur ([Coordonnées masquées]) vous propose : Studio étudiant à TOULON - LA VALETTE
Produit d'investissement

Stud'Avenue bénéficie d'un emplacement idéal à deux pas du campus, au cOEur d'une importante zone commerciale dynamique.

La résidence logements étudiants est entièrement meublés et équipés ainsi que de nombreux services facilitant le quotidien. Investir dans Stud'Avenue est l'occasion unique de se constituer un patrimoine de valeur, préparer sa retraite et générer des revenus sécurisés nets d'impôt.

Rentabilité de 3,61%

Honoraires d'agence à la charge du vendeur. Bien non soumis au DPE. Les informations sur les risques auxquels ce bien est exposé sont disponibles sur le site Géorisques : www.georisques.gouv.fr. La présente annonce immobilière a été rédigée sous la responsabilité éditoriale de M. Guillaume Sueur EI (ID 13733), mandataire indépendant en immobilier (sans détention de fonds), agent commercial de la SAS I@D France immatriculé au RSAC de GRASSE sous le numéro 808650865, titulaire de la carte de démarchage immobilier pour le compte de la société I@D France SAS.
Retrouvez tous nos biens sur notre site internet. www.iadfrance.fr.
Informations LOI ALUR :
Honoraires charge vendeur. (gedeon_6727_30855465)
Voir plus

Référence: 1105010-17
Honoraires à la charge du vendeur.

Prêt immobilier

Vous souhaitez connaître votre capacité d’emprunt et trouver le meilleur crédit immobilier ?
Réaliser une simulation gratuite

Photo 1 - Appartement à LA VALETTE-DU-VAR
Photo 1
Photo 2 - Appartement à LA VALETTE-DU-VAR
Photo 2
Photo 3 - Appartement à LA VALETTE-DU-VAR
Photo 3
Photo 4 - Appartement à LA VALETTE-DU-VAR
Photo 4
Ce site est protégé par reCAPTCHA la Politique de confidentialité et les Conditions d’utilisation de Google s’appliquent.
Obtenir un prêt immobilier au meilleur taux ?

En poursuivant votre navigation sans modifier vos paramètres, vous acceptez l'utilisation de cookies susceptibles de réaliser des statistiques de visite. Cliquez ici pour plus d'informations