Bénéficiez des services de nos partenaires locaux soigneusement sélectionnés
pour vous accompagner dans votre parcours d'achat immobilier

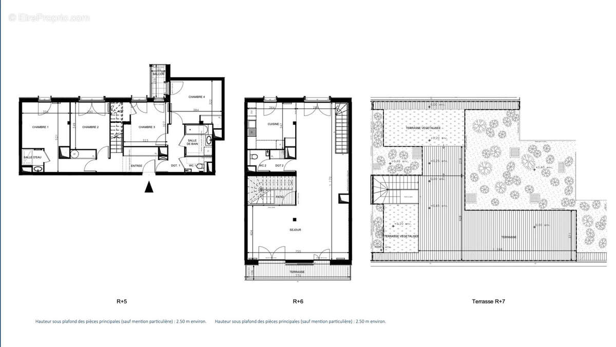
Triplex rooftop, 110m2 d'extérieur !

— Paris-18e 75018 —
3 095 000 €
147 m²
5 pièces
balcon/terrasse

Nos partenaires locaux
Triplex en étage élevé, rue Versigny à Paris 18ème.
L'appartement propose, sur 2 niveaux de vie et son rooftop , un séjour de 56m2, une cuisine séparée de 12m2, une suite parentale avec salle d'eau privative et 3 autres chambres spacieuses.
Côté extérieures, une terrasse ou balcon à chaque niveau, en plus du toit-terrasse privatif de 95m2 !
Prestations de très haute qualité, un appartement à ne pas rater ! Images d'illustration, non contractuelles.

Honoraires à la charge du vendeur.
Barème des honoraires
DPE
A
B
C
D
E
F
G
GES
A
B
C
D
E
F
G

Prêt immobilier

Vous souhaitez connaître votre capacité d’emprunt et trouver le meilleur crédit immobilier ?
Réaliser une simulation gratuite

Appartement à PARIS-18E
Appartement à PARIS-18E
Appartement à PARIS-18E
Appartement à PARIS-18E
Appartement à PARIS-18E
Ce site est protégé par reCAPTCHA la Politique de confidentialité et les Conditions d’utilisation de Google s’appliquent.
Obtenir un prêt immobilier au meilleur taux ?

En poursuivant votre navigation sans modifier vos paramètres, vous acceptez l'utilisation de cookies susceptibles de réaliser des statistiques de visite. Cliquez ici pour plus d'informations