Bénéficiez des services de nos partenaires locaux soigneusement sélectionnés
pour vous accompagner dans votre parcours d'achat immobilier

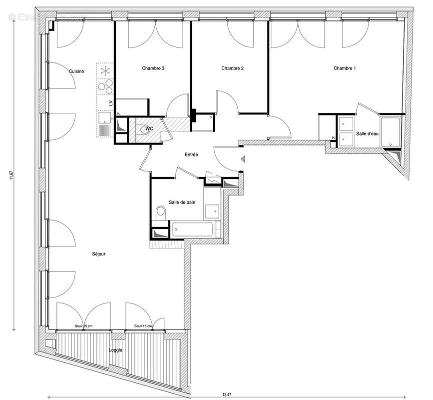
T4 au 3ème étage avec loggia et cave.

— Paris-12e 75012 —
1 470 900 €
106 m²
4 pièces

Nos partenaires locaux
Découvrez ce T4 de 100.27m2, situé au 3ème étage. L'appartement dispose d'une entrée de 8.14m2, un séjour/cuisine de 42.47m2. Trois grandes chambres dont une de 20.17m2 avec salle d'eau privative et deux autres de 10.02 et 9.89m2. Une salle de bain et un wc indépendant. De plus, une loggia de 5.31m2 complète ce bien. Contactez-nous pour plus d'informations ! Cave incluse dans le prix. Images d'illustration, non contractuelles.

Barème des honoraires
DPE
A
B
C
D
E
F
G
GES
A
B
C
D
E
F
G

Prêt immobilier

Vous souhaitez connaître votre capacité d’emprunt et trouver le meilleur crédit immobilier ?
Réaliser une simulation gratuite

Appartement à PARIS-12E
Appartement à PARIS-12E
Appartement à PARIS-12E
Appartement à PARIS-12E
Ce site est protégé par reCAPTCHA la Politique de confidentialité et les Conditions d’utilisation de Google s’appliquent.
Obtenir un prêt immobilier au meilleur taux ?

En poursuivant votre navigation sans modifier vos paramètres, vous acceptez l'utilisation de cookies susceptibles de réaliser des statistiques de visite. Cliquez ici pour plus d'informations