Bénéficiez des services de nos partenaires locaux soigneusement sélectionnés
pour vous accompagner dans votre parcours d'achat immobilier

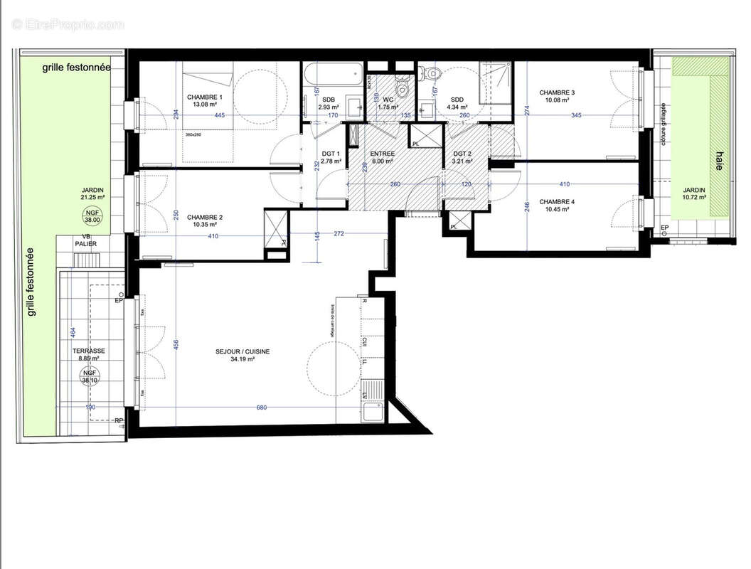
T5 en rez-de-jardin avec terrasse, jardins et parking.

— Saint-Ouen 93400 —
584 646 €
99 m²
5 pièces
balcon/terrasse

Nos partenaires locaux
Découvrez ce T5 de 99,16m2, situé en rez-de-jardin. L'appartement dispose d'une entrée de 6m2, d'un séjour/cuisine de 34,19m2. Quatre grandes chambres (13,08-10,35-10,08-10,45m2), deux dégagements. Une salle de bain de 2,93m2, une salle de douche de 4,34m2 et un wc indépendant. De plus, une terrasse de 8,85m2, accessible depuis le séjour/cuisine complète ce bien. L'appartement dispose également de deux jardins de 21,25 et 10,75m2, l'un accessible depuis la chambre 1 et 2 et l'autre depuis la chambre 3 et 4. Contactez-nous pour plus d'informations. Prix affiche en TVA réduite. Parking en sous-sol inclus dans le prix Images d'illustration, non contractuelles
Voir plus

Honoraires à la charge du vendeur.
Barème des honoraires
DPE
A
B
C
D
E
F
G
GES
A
B
C
D
E
F
G

Prêt immobilier

Vous souhaitez connaître votre capacité d’emprunt et trouver le meilleur crédit immobilier ?
Réaliser une simulation gratuite

Appartement à SAINT-OUEN
Appartement à SAINT-OUEN
Appartement à SAINT-OUEN
Appartement à SAINT-OUEN
Ce site est protégé par reCAPTCHA la Politique de confidentialité et les Conditions d’utilisation de Google s’appliquent.
Obtenir un prêt immobilier au meilleur taux ?

En poursuivant votre navigation sans modifier vos paramètres, vous acceptez l'utilisation de cookies susceptibles de réaliser des statistiques de visite. Cliquez ici pour plus d'informations