Bénéficiez des services de nos partenaires locaux soigneusement sélectionnés
pour vous accompagner dans votre parcours d'achat immobilier

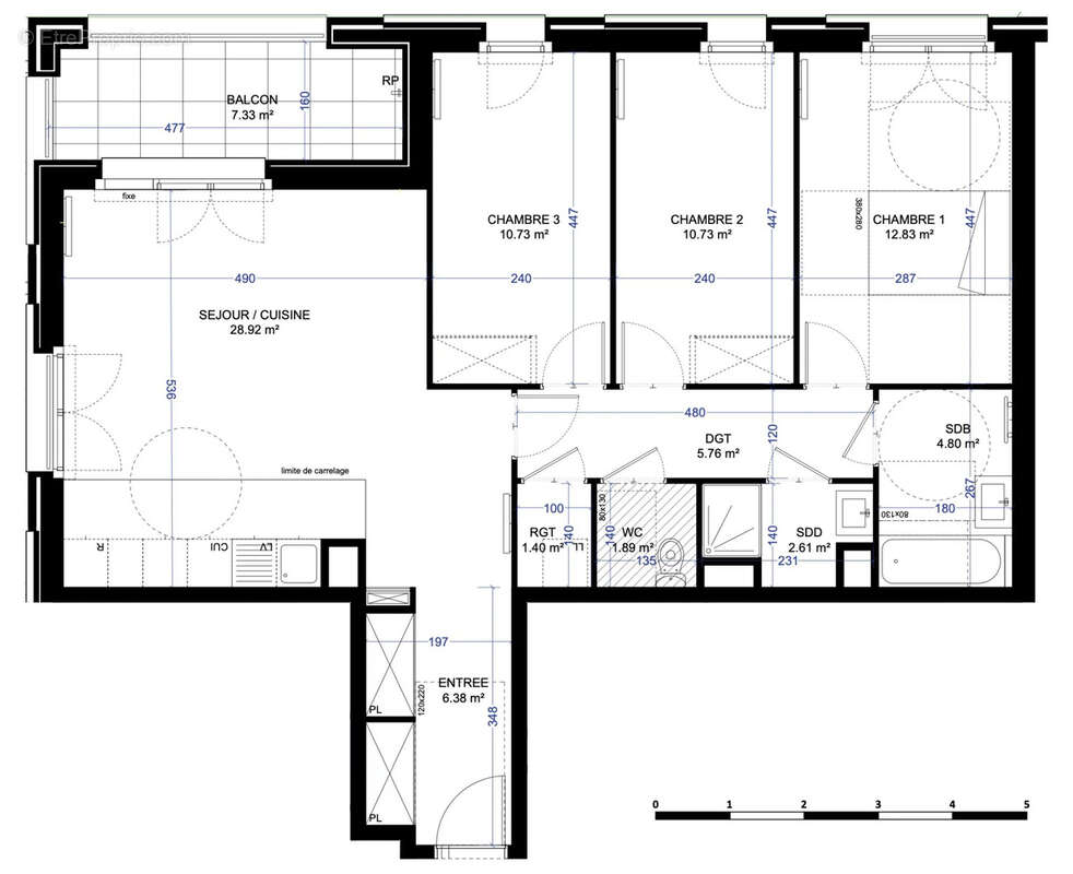
T4 au 2ème étage avec balcon et parking.

— Saint-Ouen 93400 —
569 700 €
86 m²
4 pièces
balcon/terrasse

Nos partenaires locaux
Découvrez ce T4 de 86,05m2, situé au 2ème étage. L'appartement dispose d'une entrée de 6,38m2, d'un séjour/cuisine de 28,82m2. Trois grandes chambres dont une de 12,83m2 et 2 autres de 10,73m2, un dégagement. Une salle de bain de 4,80, une salle de douche de 2,61m2 et un wc indépendant. De plus, un balcon de 7,33m2, accessible depuis le séjour/cuisine complète ce bien. Contactez-nous pour plus d'informations. Prix affiche en TVA réduite. Parking en sous-sol inclus dans le prix Images d'illustration, non contractuelles
Voir plus

Bien en copropriété. Nombre de lots : 20.
Honoraires à la charge du vendeur.
Barème des honoraires
DPE
A
B
C
D
E
F
G
GES
A
B
C
D
E
F
G

Prêt immobilier

Vous souhaitez connaître votre capacité d’emprunt et trouver le meilleur crédit immobilier ?
Réaliser une simulation gratuite

Appartement à SAINT-OUEN
Appartement à SAINT-OUEN
Appartement à SAINT-OUEN
Appartement à SAINT-OUEN
Ce site est protégé par reCAPTCHA la Politique de confidentialité et les Conditions d’utilisation de Google s’appliquent.
Obtenir un prêt immobilier au meilleur taux ?

En poursuivant votre navigation sans modifier vos paramètres, vous acceptez l'utilisation de cookies susceptibles de réaliser des statistiques de visite. Cliquez ici pour plus d'informations