A vendre - ensemble immobilier d'environ 133 m2 - etang sale - 587 000 €

— L'etang-Sale 97427 —
587 000 €
133 m²
7 pièces

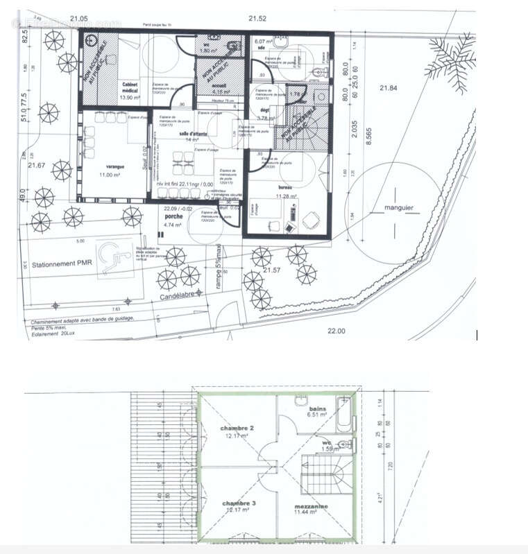
A VENDRE - Le Cabinet Habilis vous propose à la vente un ensemble immobilier d'environ 133 m2, édifié sur un terrain de 319 m2 environ, situé à L'ETANG SALE.
Idéalement implanté en centre-ville, il bénéficie d'un emplacement stratégique grâce à sa proximité immédiate de toutes les commodités et des atraits touristiques.
Idéalement conçu sur deux niveaux, il comprend un local commercial spacieux de 73 m2 environ au rez de chaussée composé d'une salle d'attente, d'un bureau, ainsi que des sanitaires, dont un accessible aux personnes à mobilité réduite. Une varangue de 11 m2 environ, s'ajoute à cet espace.
À l'étage, un confortable logement d'environ 45 m2 composé de deux grandes chambres, d’une salle de bains et de WC séparés, vous offrira un cadre de vie agréable.
Une dépendance d'environ 15 m2 ainsi qu'une place de stationnement privative, adaptée aux personnes à mobilité réduite, viennent compléter ce bien.
OPPORTUNITÉ POUR LES INVESTISSEURS, l'ensemble est actuellement loué.
Faites l'acquisition de ce bien au prix de 587 000 €. Les honoraires sont à la charge du vendeur.
Vous pouvez consulter notre grille tarifaire en vigueur à l’adresse suivante : https://www.cabinet-habilis.com/nos-honoraires.pdf
Les informations sur les risques auxquels ce bien est exposé sont disponibles sur le site géorisques : www.georisques.gouv.fr
Contactez votre agence immobilière, sous le numéro de carte professionnelle no : CPI 9742 2[Coordonnées masquées]64 délivrée par : CCI de la Réunion au [Coordonnées masquées] ou au [Coordonnées masquées] ou par mail sur sur [Coordonnées masquées] ou sur [Coordonnées masquées]

Annonce rédigée sous la responsabilité éditoriale de l'agent commercial. www.cabinet-habilis.com
Voir plus

Barème des honoraires

Prêt immobilier

Vous souhaitez connaître votre capacité d’emprunt et trouver le meilleur crédit immobilier ?
Réaliser une simulation gratuite

Appartement à L'ETANG-SALE
Appartement à L'ETANG-SALE
Appartement à L'ETANG-SALE
Appartement à L'ETANG-SALE
Appartement à L'ETANG-SALE
Ce site est protégé par reCAPTCHA la Politique de confidentialité et les Conditions d’utilisation de Google s’appliquent.
Obtenir un prêt immobilier au meilleur taux ?

En poursuivant votre navigation sans modifier vos paramètres, vous acceptez l'utilisation de cookies susceptibles de réaliser des statistiques de visite. Cliquez ici pour plus d'informations