29530 plonévez du faou maison très bien entretenue 5 chambres sous sol complet 2200 m²

— Plonevez-Du-Faou 29530 —
220 000 €
130 m² / 2 200 m²
8 pièces

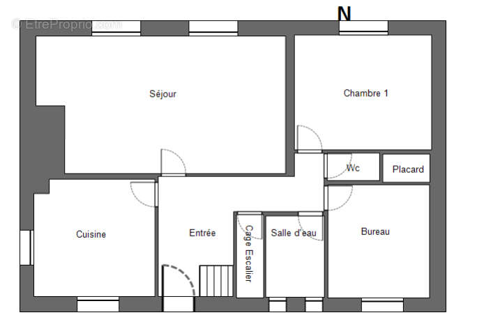
Maison avec 5 chambres dont 2 en Rez-de-chaussée.
Entrée, cuisine, salon-séjour, 2 chambres, salle d'eau, WC
En étage : 3 chambres dont 1 chambre d'enfant / bureau, salle d'eau, WC
Sous sol complet.
Jardin arboré et entretenu sur 2200 m².

Budget : 220 000 euros honoraires à la charge du vendeur.

Pour visiter et vous accompagner dans votre projet, contactez Philippe BALAC, au [Coordonnées masquées] ou par courriel à [Coordonnées masquées]
Selon l'article L.561.5 du Code Monétaire et Financier, pour l'organisation de la visite, la présentation d'une pièce d'identité vous sera demandée.
Cette vente est garantie 12 mois.
Cette présente annonce a été rédigée sous la responsabilité éditoriale de Philippe BALAC agissant en qualité de conseiller immobilier indépendant sous portage salarial auprès de la SAS PROPRIETES PRIVEES, au capital de 40 000 euros, ZAC LE CHÊNE FERRÉ - 44 ALLÉE DES CINQ CONTINENTS 44120 VERTOU; SIRET 487 624 777 00040, RCS Nantes. Carte professionnelle Transactions sur immeubles et fonds de commerce (T) et Gestion immobilière (G) n° CPI 44[Coordonnées masquées]10 388 délivrée par la CCI Nantes - Saint Nazaire.
Consommation énergie primaire D 197 kWh/m2 par an
Gaz Effet de Serre D 45 CO2/m2/an
Mandat réf : 398624 - Le professionnel garantit et sécurise votre projet immobilier.
Les informations sur les risques auxquels ce bien est exposé sont disponibles sur le site Géorisques : www. georisques. gouv. fr
Voir plus

Référence: 398624BCP
Honoraires à la charge du vendeur.
DPE
A
B
C
D
E
F
G
GES
A
B
C
D
E
F
G

Prêt immobilier

Vous souhaitez connaître votre capacité d’emprunt et trouver le meilleur crédit immobilier ?
Réaliser une simulation gratuite

Maison à PLONEVEZ-DU-FAOU
Maison à PLONEVEZ-DU-FAOU
Maison à PLONEVEZ-DU-FAOU
Maison à PLONEVEZ-DU-FAOU
Maison à PLONEVEZ-DU-FAOU
Maison à PLONEVEZ-DU-FAOU
Maison à PLONEVEZ-DU-FAOU
Maison à PLONEVEZ-DU-FAOU
Ce site est protégé par reCAPTCHA la Politique de confidentialité et les Conditions d’utilisation de Google s’appliquent.
Obtenir un prêt immobilier au meilleur taux ?

En poursuivant votre navigation sans modifier vos paramètres, vous acceptez l'utilisation de cookies susceptibles de réaliser des statistiques de visite. Cliquez ici pour plus d'informations