Bénéficiez des services de nos partenaires locaux soigneusement sélectionnés
pour vous accompagner dans votre parcours d'achat immobilier

Appartement

— Bayonne 64100 —
425 000 €
91 m²
4 pièces
parkingbalcon/terrasseascenseur

Nos partenaires locaux
BAYONNE APPARTEMENT T4 91 M² 3 CHAMBRES BALCONPLACE PARKING EN SOUS-SOL ASCENSEUR

5 T4 de 91 à 112 m² sont à la vente

Miguel Treal, Efficity Immobilier, vous présente une résidence intimiste de 17 logements située quartier d'Arrousets.
Un projet moderne répondant aux normes RT 2012, idéal pour une résidence principale, secondaire ou un investissement locatif.

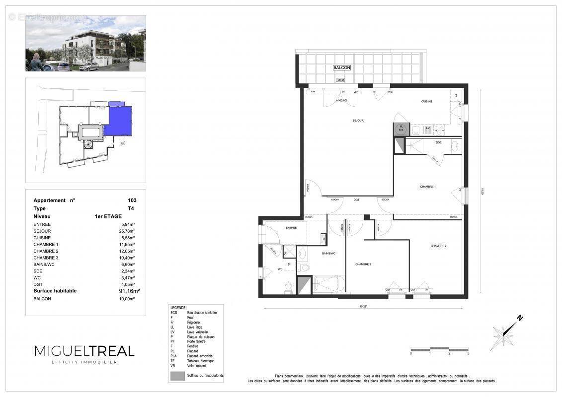
Description détaillée
• 1er étage
• Surface: 91,16 m²
• Séjour lumineux de 25 m²
• Cuisine ouverte, aménagée et équipée de 8,5 m²
• Chambre 1 de 12 m²
• Chambre 2 de 12 m²
• Chambre 3 de 10,4 m²
• Salle de bain + wc
• Salle d'eau
• Wc séparé

Extérieurs et commodités
• Balcon de 10 m²
• 1 place de parking en sous-sol compris dans le prix. Accessible par ascenseur
• Local vélos
• Local poubelles

Confort et équipements
• Cuisine équipée avec réfrigérateur congélateur (classe A), plaque vitrocéramique encastrée 3 feux, hotte aspirante intégrée
• Salle d'eau équipée avec sèche-serviette électrique, lave-linge (classe A)
• Chauffage par radiateurs électriques et ballon d'eau chaude thermodynamique
• VMC contrôlée hygroréglable pour un confort optimal
• Menuiseries extérieures PVC ou aluminium avec double vitrage isolant
• Volets roulants électriques en PVC ou coulissants en aluminium/bois

Sécurité et commodités
• Vidéophone et alarme individuelle avec détecteur de mouvement
• Parking sécurisé en sous-sol (mécanisé, hauteur max 1,80 m, poids max 2T)
• Système Alinea Park : parkings superposés
• Ascenseur et local vélos

Environnement
• Proximité immédiate des commerces, écoles, médecins et pharmacies
• Accès rapide aux transports et axes routiers

Pour plus d'informations, contactez Miguel Treal au [Coordonnées masquées]
Les informations sur les risques auxquels ce bien est exposé sont disponibles sur le site Georisque : georisques. gouv. fr
Miguel Treal - EI - est Agent Commercial mandataire en immobilier, immatriculé au Registre Spécial des Agents Commerciaux du Tribunal de Commerce de Dax sous le n°850011503.
Siège social du mandant : effiCity, 48 avenue de Villiers - 75017 PARIS - Société par Actions Simplifiée, société au capital de 132 373,05 euros, immatriculée au RCS Paris 497 617 746 et titulaire de la Carte professionnelle CPI 75[Coordonnées masquées]02 025 - CCI Paris IDF - Caisse de Garantie : GALIAN Assurances 89 rue de la Boétie 75008 Paris
Voir plus

Référence: 1782122
Honoraires à la charge du vendeur.
Barème des honoraires
DPE
A
B
C
D
E
F
G
GES
A
B
C
D
E
F
G

Prêt immobilier

Vous souhaitez connaître votre capacité d’emprunt et trouver le meilleur crédit immobilier ?
Réaliser une simulation gratuite

Appartement à BAYONNE
Appartement à BAYONNE
Appartement à BAYONNE
Appartement à BAYONNE
Appartement à BAYONNE
Appartement à BAYONNE
Appartement à BAYONNE
Appartement à BAYONNE
Appartement à BAYONNE
Appartement à BAYONNE
Appartement à BAYONNE
Ce site est protégé par reCAPTCHA la Politique de confidentialité et les Conditions d’utilisation de Google s’appliquent.
Obtenir un prêt immobilier au meilleur taux ?

En poursuivant votre navigation sans modifier vos paramètres, vous acceptez l'utilisation de cookies susceptibles de réaliser des statistiques de visite. Cliquez ici pour plus d'informations