Bénéficiez des services de nos partenaires locaux soigneusement sélectionnés
pour vous accompagner dans votre parcours d'achat immobilier

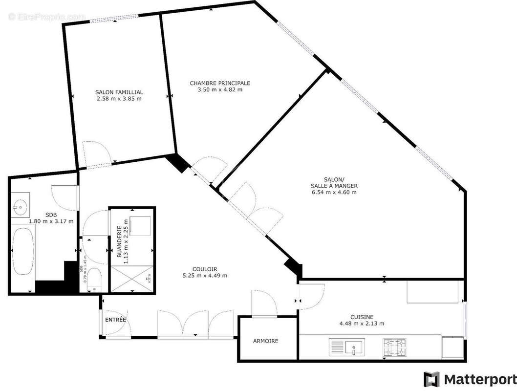
Appartement 86m² à paris 18e arrondissement

— Paris-18e 75018 —
680 000 €
86 m²
3 pièces

Nos partenaires locaux
Métro Guy Moquet, situé dans une copropriété bien entretenue, rue d'Oslo, vous bénéficierez d'un confort de vie avec un ascenseur, vous permettant un accès facile et pratique.
Un appartement familial de 86 m2, avec un séjour de 43m2, possible d'ouvrir la cuisine actuellement aménagée et équipée. Doté de 2 chambres possibilités d'une 3ème chambre, cet appartement offre un espace de vie optimal pour votre famille.
Grâce à son agencement, l'appartement est lumineux naturellement.
Il nous offre une grande modularité, vous permettant de personnaliser les espaces selon vos besoins. De plus, il y a une salle d'eau et une salle de bain et un WC indépendant.
Classification DPE en catégorie D témoigne de son efficacité énergétique, vous permettant ainsi de réduire votre empreinte écologique.
Ne manquez pas cette opportunité unique d'acquérir un appartement familial lumineux et modulable dans une localisation prisée.
Possibilité d'un parking en plus.
Contactez-nous dès aujourd'hui pour organiser une visite et découvrir tout le potentiel de cet appartement.
Pour plus de renseignements contactez-nous au [Coordonnées masquées]
L'Etat des Risques et Pollution peut être consulté sur https://www.georisques.gouv.fr
Voir plus

Référence: 4175
DPE
A
B
C
D
E
F
G
GES
A
B
C
D
E
F
G

Prêt immobilier

Vous souhaitez connaître votre capacité d’emprunt et trouver le meilleur crédit immobilier ?
Réaliser une simulation gratuite

Appartement à PARIS-18E
Appartement à PARIS-18E
Appartement à PARIS-18E
Appartement à PARIS-18E
Appartement à PARIS-18E
Appartement à PARIS-18E
Appartement à PARIS-18E
Appartement à PARIS-18E
Appartement à PARIS-18E
Appartement à PARIS-18E
Ce site est protégé par reCAPTCHA la Politique de confidentialité et les Conditions d’utilisation de Google s’appliquent.
Obtenir un prêt immobilier au meilleur taux ?

En poursuivant votre navigation sans modifier vos paramètres, vous acceptez l'utilisation de cookies susceptibles de réaliser des statistiques de visite. Cliquez ici pour plus d'informations