Bénéficiez des services de nos partenaires locaux soigneusement sélectionnés
pour vous accompagner dans votre parcours d'achat immobilier

Voir tous les partenaires locaux

Maison en pierre avec garages et terrasse - jardin public

— Bordeaux 33000 —
1 627 000 €
500 m²
6 pièces

Nos partenaires locaux
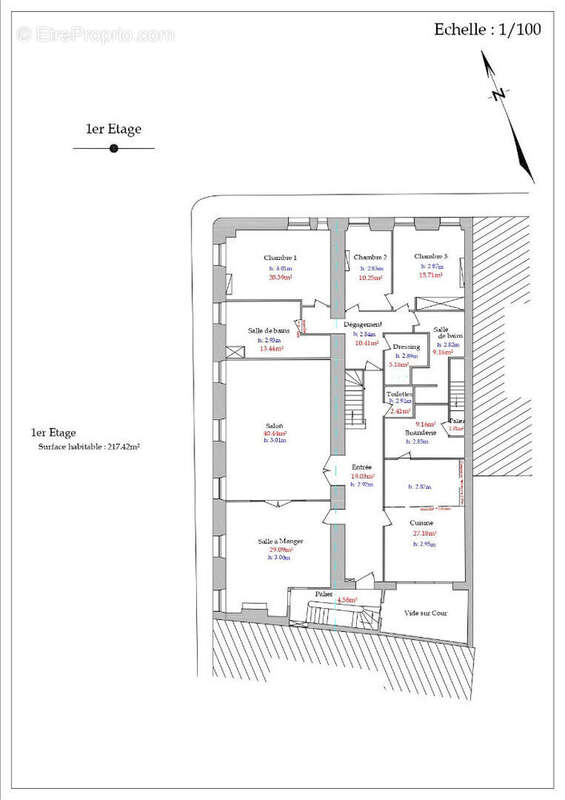
BORDEAUX - JARDIN PUBLIC. L'agence GRANGE-DELMAS vous propose à la vente cette superbe maison de 271m² habitable, avec deux grands garages (stationnement jusqu'à 7 voitures). Cette maison est idéalement située entre le Jardin Public et le quartier des Chartrons, dans une rue calme. Le rez-de-chaussée de plus de 200m² se compose de 132m² de garage avec deux entrées indépendantes, de 51m² d'espace à aménager selon vos besoins, une cave et une cour. Au 1er étage, l'entrée distribue une double réception de 70m² avec parquet et belle hauteur sous plafond, baignée de lumière. Grande cuisine dinatoire séparée avec arrière cuisine. L'espace nuit accueille 3 chambres, dont une chambre parentale avec salle de bain privative, un dressing, une 2nde salle de bain et une buanderie. Au niveau supérieur, un vaste espace de 40m² habitable avec terrasse de 28 m² est actuellement aménagé en bureau avec sa cheminée et un espace de nuit avec sa salle d'eau. Chaque niveau de cette grande maison peut avoir son entrée indépendante. Ce bel ensemble immobilier offre de nombreuses possibilités d'aménagement pour une famille ou une activité libérale avec 3 entrées indépendantes, dans un secteur prisé, proche des commerces, de l'hyper centre, des transports Tram C. Prix: 1.627.000 EUR (4.97 % honoraires TTC à la charge de l'acquéreur.)
Voir plus

Référence: 14747
Honoraires d'agence de 4.97% à la charge de l'acquéreur
DPE
A
B
C
D
E
F
G
GES
A
B
C
D
E
F
G

Prêt immobilier

Vous souhaitez connaître votre capacité d’emprunt et trouver le meilleur crédit immobilier ?
Réaliser une simulation gratuite

Maison à BORDEAUX
Maison à BORDEAUX
Maison à BORDEAUX
Maison à BORDEAUX
Maison à BORDEAUX
Maison à BORDEAUX
Maison à BORDEAUX
Maison à BORDEAUX
Maison à BORDEAUX
Maison à BORDEAUX
Maison à BORDEAUX
Maison à BORDEAUX
Maison à BORDEAUX
Maison à BORDEAUX
Maison à BORDEAUX
Ce site est protégé par reCAPTCHA la Politique de confidentialité et les Conditions d’utilisation de Google s’appliquent.
Obtenir un prêt immobilier au meilleur taux ?

En poursuivant votre navigation sans modifier vos paramètres, vous acceptez l'utilisation de cookies susceptibles de réaliser des statistiques de visite. Cliquez ici pour plus d'informations