Bénéficiez des services de nos partenaires locaux soigneusement sélectionnés
pour vous accompagner dans votre parcours d'achat immobilier

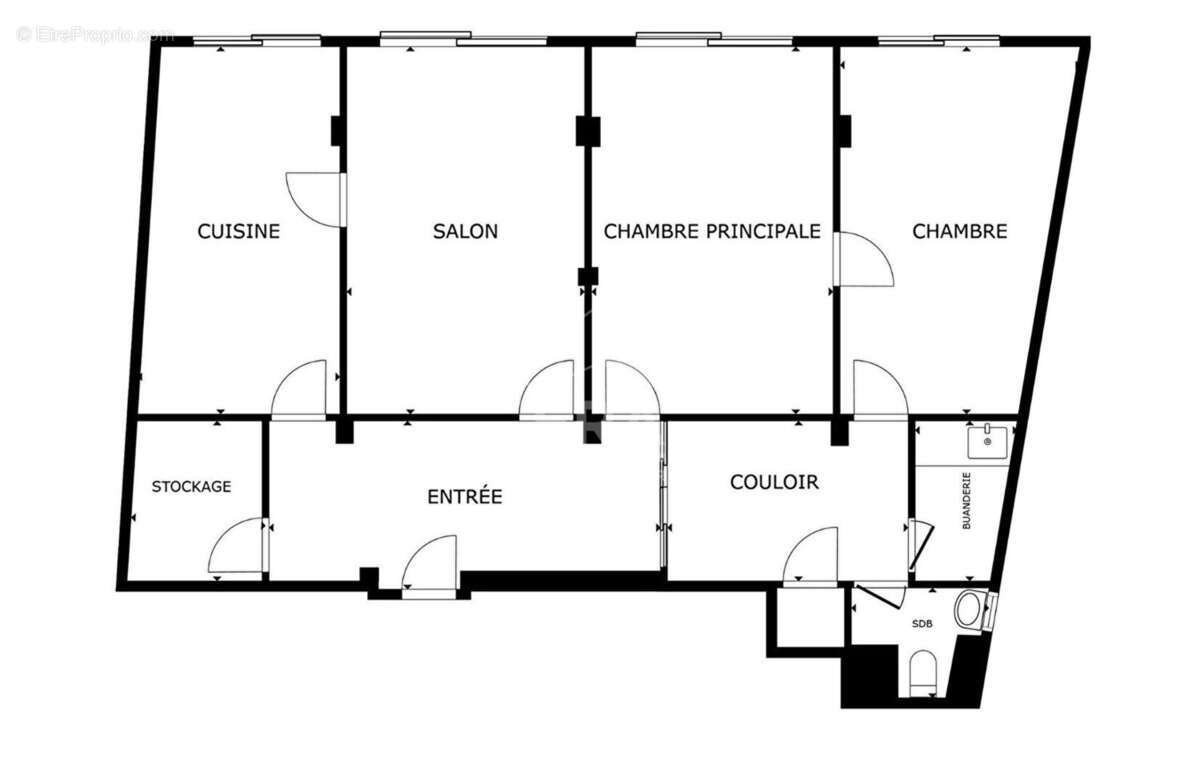
Appartement 104m² à nice

— Nice 06000 —
450 000 €
105 m²
4 pièces

Nos partenaires locaux
NICE - FLEURS / J. FRICERO : Dans un immeuble bien tenu, VASTE 4 PIÈCES AU CALME. A usage de bureau .
Composé d'une entrée, d'un séjour, de 3 chambres, d'une cuisine indépendante et d'un WC indépendant. Actuellement aménagé en bureaux.
Beaux volumes, appartement exposé OUEST.
Professions libérales autorisées.
Local à vélo au sein de la copropriété.
À proximité de tous les commerces et commodités, à deux pas de la station de tramway et à quelques minutes de la Promenade des Anglais et des plages.
Contactez notre agence immobilière Nice Era Gambetta ; spécialiste de l'immobilier dans les quartiers Gambetta/Fleurs/Musiciens/Carré d'Or, pour plus d'informations (vente, achat, estimation, conseil en immobilier...).
Contactez-nous au [Coordonnées masquées] !
L'Etat des Risques et Pollution peut être consulté sur https://www.georisques.gouv.fr
Voir plus

Référence: n859
DPE
A
B
C
D
E
F
G
GES
A
B
C
D
E
F
G

Prêt immobilier

Vous souhaitez connaître votre capacité d’emprunt et trouver le meilleur crédit immobilier ?
Réaliser une simulation gratuite

Appartement à NICE
Appartement à NICE
Appartement à NICE
Appartement à NICE
Appartement à NICE
Appartement à NICE
Appartement à NICE
Appartement à NICE
Appartement à NICE
Appartement à NICE
Appartement à NICE
Appartement à NICE
Appartement à NICE
Appartement à NICE
Appartement à NICE
Appartement à NICE
Appartement à NICE
Ce site est protégé par reCAPTCHA la Politique de confidentialité et les Conditions d’utilisation de Google s’appliquent.
Obtenir un prêt immobilier au meilleur taux ?

En poursuivant votre navigation sans modifier vos paramètres, vous acceptez l'utilisation de cookies susceptibles de réaliser des statistiques de visite. Cliquez ici pour plus d'informations