Bénéficiez des services de nos partenaires locaux soigneusement sélectionnés
pour vous accompagner dans votre parcours d'achat immobilier

Appartement

— Dieppe 76200 —
114 000 €
31 m²
2 pièces

Nos partenaires locaux
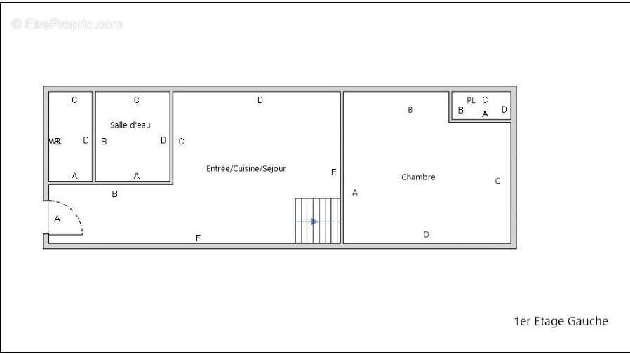
Petit prix pour cette appartement situé au centre ville de Dieppe au 1er étage dans une immeuble ancien de trois étages. L'appartement c'est un T2 comprend : une belle chambre avec placard de rangement et cheminé ancienne à usage décoration , une cuisine aménagé ouverte sur le salon, une salle d'eau avec douche à l'italienne , wc séparé. Attention! le DPE a été fait en 2023 avant travaux , l'appartement à vendre au 2eme étage est classé en C en décembre 2024 après travaux . L'appartement est clefs en mains! A' l'intérieur aucun travaux est à prévoir et des travaux sont prévu dans l'immeuble, votés et déjà payés. Idéale pied à terre à la mer au au investissement locatif, ne tardez pas pour visiter ! Pour vous accompagner dans votre projet, contactez Veronica LILE [Coordonnées masquées] Prix 114000TTC et Honoraires à charge vendeur Les informations sur les risques auxquels ce bien est exposé sont disponibles sur le site Géorisques : www.georisques.gouv.fr Cette présente annonce a été rédigée sous la responsabilité éditoriale de Veronica LILE agissant sous le statut d'agent commercial immatriculé au sous811 209 105
Voir plus

Référence: 3011439034
Honoraires à la charge du vendeur.
DPE
A
B
C
D
E
F
G
GES
A
B
C
D
E
F
G

Prêt immobilier

Vous souhaitez connaître votre capacité d’emprunt et trouver le meilleur crédit immobilier ?
Réaliser une simulation gratuite

Appartement à DIEPPE
Appartement à DIEPPE
Appartement à DIEPPE
Appartement à DIEPPE
Appartement à DIEPPE
Ce site est protégé par reCAPTCHA la Politique de confidentialité et les Conditions d’utilisation de Google s’appliquent.
Obtenir un prêt immobilier au meilleur taux ?

En poursuivant votre navigation sans modifier vos paramètres, vous acceptez l'utilisation de cookies susceptibles de réaliser des statistiques de visite. Cliquez ici pour plus d'informations