Charmante maison familiale de 4 chambres à mervans proximité des commodités

— Mervans 71310 —
219 000 €
115 m² / 880 m²
7 pièces
parkingjardin

Venez découvrir cette jolie maison située à Mervans, dans un quartier tranquille, à quelques pas des commerces, des écoles et de la ligne de bus desservant le collège. À seulement 5 minutes de Saint-Germain-du-Bois et à 30 minutes de Chalon-sur-Saône
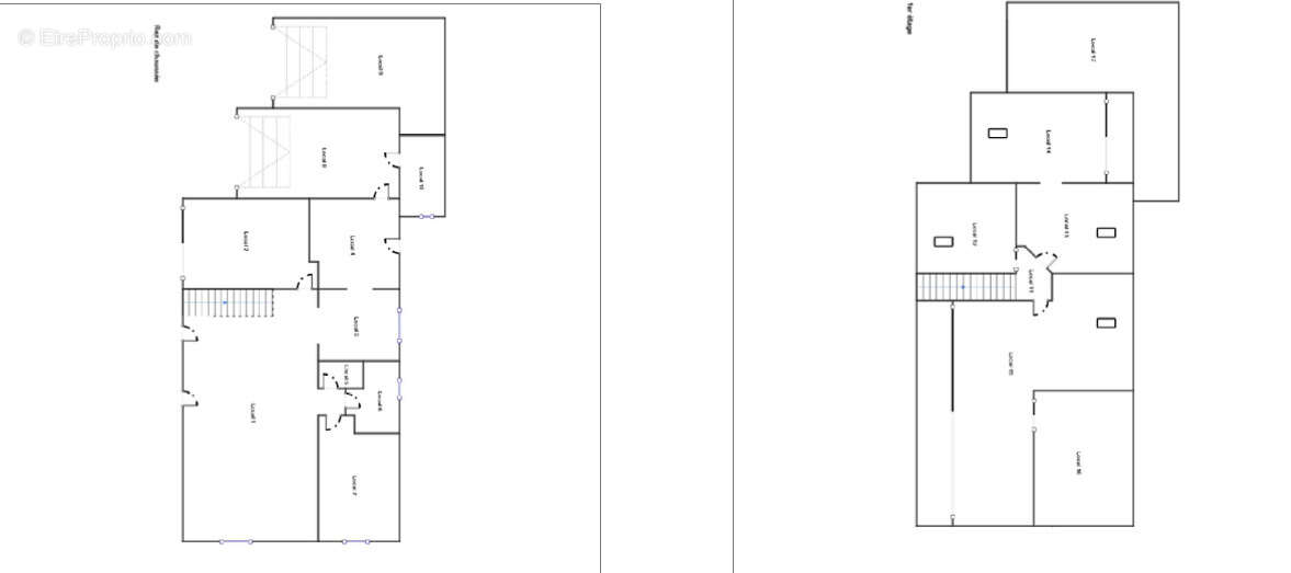
Rez-de-chaussée :

Cuisine aménagée + arrière cuisine avec coin buanderie et accès à l'extérieur
Séjour lumineux avec poêle à granules pour un confort optimal
Deux chambres
Salle d'eau avec douche à l’italienne et WC séparés

À l'étage :

Deux chambres
Salle de bains (balnéo) avec WC

Les plus de cette maison :

Fenêtres en double vitrage PVC, volets roulants électriques centralisés, moustiquaire
Chauffage économique et écologique grâce à la pompe à chaleur air/air
Assainissement raccordé au tout-à-l’égout


Double garage avec portes motorisées
Cellier, et grenier pour un espace de stockage supplémentaire
Terrasse couverte, parfaite pour les repas en extérieur
Abri de jardin pour ranger vos équipements

Le tout sur un terrain clos (portail electrique) et arboré de 880 m2. Portillon dans le jardin donnant accès à la Guyotte pour les pêcheurs.
Cette maison est idéale pour une famille en quête de confort, de calme et de praticité, sans nécessiter de travaux. Elle vous offre tout l'espace nécessaire tout en étant proche des commodités locales.
Les informations sur les risques auxquels ce bien est exposé sont disponibles sur le site Géorisques : www.georisques.gouv.fr Une agence 100 % terrain créée en janvier 2025. Engagée localement, mon objectif est de vous accompagner avec bienveillance et professionnalisme dans tous vos projets immobiliers.100 % du prix HT des estimations est reversé aux écoles de nos villages
Voir plus

Référence: 12
Honoraires à la charge du vendeur.
Barème des honoraires
DPE
A
B
C
D
E
F
G
GES
A
B
C
D
E
F
G

Prêt immobilier

Vous souhaitez connaître votre capacité d’emprunt et trouver le meilleur crédit immobilier ?
Réaliser une simulation gratuite

Maison à MERVANS
Maison à MERVANS
Maison à MERVANS
Maison à MERVANS
Maison à MERVANS
Maison à MERVANS
Maison à MERVANS
Maison à MERVANS
Maison à MERVANS
Maison à MERVANS
Maison à MERVANS
Maison à MERVANS
Maison à MERVANS
Maison à MERVANS
Maison à MERVANS
Maison à MERVANS
Maison à MERVANS
Maison à MERVANS
Maison à MERVANS
Ce site est protégé par reCAPTCHA la Politique de confidentialité et les Conditions d’utilisation de Google s’appliquent.
Obtenir un prêt immobilier au meilleur taux ?

En poursuivant votre navigation sans modifier vos paramètres, vous acceptez l'utilisation de cookies susceptibles de réaliser des statistiques de visite. Cliquez ici pour plus d'informations