Bénéficiez des services de nos partenaires locaux soigneusement sélectionnés
pour vous accompagner dans votre parcours d'achat immobilier

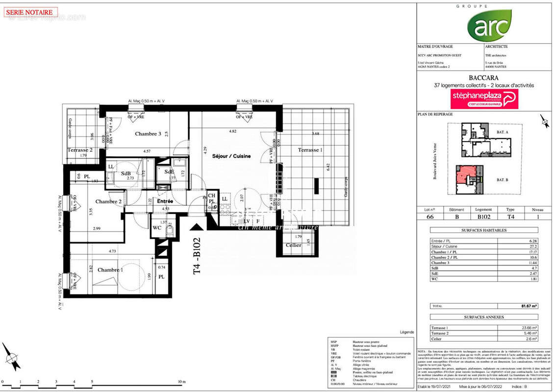
Appartement 81m² à nantes

— Nantes 44300 —
397 000 €
82 m²
4 pièces
parkingbalcon/terrasseascenseur

Nos partenaires locaux
Appartements neufs livrés !

Dans une résidence de standing alliant architecture contemporaine et verdure, venez découvrir les différents appartements à vendre.

Un appartement de type 4 disposé comme suit : une entrée desservant un séjour / cuisine lumineux de 27 m² donnant sur une grande terrasse exposée SUD-EST (23 m²), un dégagement desservant 3 chambres (2 avec placards & 1 avec balcon) une salle de bain, une salle d'eau et des W.C. séparés.

Ce bien est complété par une place de stationnement en sous-sol et un local vélo commun.

La localisation de cet appartement vous rapprochera des transports en commun, des commodités et établissements scolaires.

Vous serrez à :

- 1km de la station de tram Haluchères-Batignolles
- 2km du centre commercial Paridis (faisant l'objet d'un projet d'amélioration ?Projet Paridis 21')
- 1km d'un établissement scolaire (école élémentaire)

Contactez-nous pour avoir plus de renseignements et pour organiser une visite.

Référence : B102

Dans une copropriété de 1 lots. Aucune procédure n'est en cours. Non soumis au DPE. Les informations sur les risques auxquels ce bien est exposé sont disponibles sur le site Géorisques : georisques.gouv.fr.
Voir plus

Référence: 1234567-ESPACESDEXCEPTION44
Bien en copropriété. Nombre de lots : 1.
Honoraires à la charge de l'acquéreur.
Barème des honoraires

Prêt immobilier

Vous souhaitez connaître votre capacité d’emprunt et trouver le meilleur crédit immobilier ?
Réaliser une simulation gratuite

Séjour cuisine 2  - Appartement à NANTES
Séjour cuisine 2
Séjour cuisine 1 - Appartement à NANTES
Séjour cuisine 1
Séjour cuisine 3 - Appartement à NANTES
Séjour cuisine 3
Chambre 1 - Appartement à NANTES
Chambre 1
Chambre 2 - Appartement à NANTES
Chambre 2
Chambre 3 - Appartement à NANTES
Chambre 3
Salle d'eau - Appartement à NANTES
Salle d'eau
Terrasse - Appartement à NANTES
Terrasse
Plan - Appartement à NANTES
Plan
Ce site est protégé par reCAPTCHA la Politique de confidentialité et les Conditions d’utilisation de Google s’appliquent.
Obtenir un prêt immobilier au meilleur taux ?

En poursuivant votre navigation sans modifier vos paramètres, vous acceptez l'utilisation de cookies susceptibles de réaliser des statistiques de visite. Cliquez ici pour plus d'informations