Bénéficiez des services de nos partenaires locaux soigneusement sélectionnés
pour vous accompagner dans votre parcours d'achat immobilier

Villa individuelle de standing en vefa

— Veigy-Foncenex 74140 —
1 320 000 €
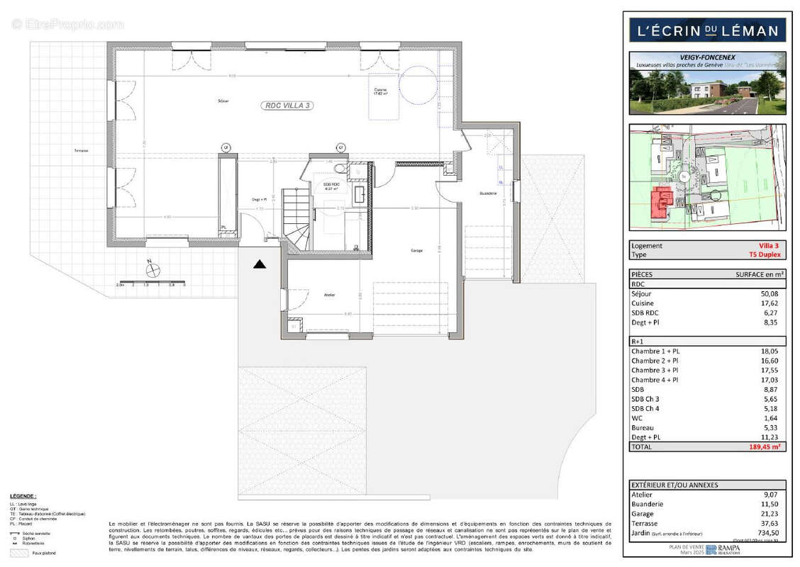
189 m² / 1 029 m²
6 pièces
parkingbalcon/terrassejardin

Nos partenaires locaux
Villa de prestige en construction à Veigy. Venez découvrir cette villa d'exception en construction à Veigy, un véritable chef-d'œuvre qui allie confort, design et modernité. Située en plein centre de Veigy, dans un cadre calme et arboré, cette propriété vous offrira une qualité de vie incomparable. Profitez d’un cadre idyllique, entre tranquillité et proximité à pied des commodités du centre de Veigy. Vous serez séduit dès l'entrée avec un grand hall d'entrée avec penderie integrée et vous profiterez d'un espace de vie lumineux de plus de 70 m2 avec de grandes ouvertures permettant d’accéder sur la terrasse et le jardin de plain-pied ainsi qu'une cuisine américaine, équipée et aménagée. A l’étage, 4 chambres spacieuses avec penderies intégrées, chacune avec sa propre salle de bain privée et plusieurs espaces dressing et/ou bureau pour un rangement optimal. Côté performance, une pompe à chaleur avec distribution au sol sur tous les niveaux pour une chaleur agréable et homogène. Côté pratique, une grande buanderie, un grand garage avec espace atelier. Côté extérieur, un jardin piscinable et clôturé pour votre intimité, une terrasse avec revêtement carrelage pour profiter pleinement de vos moments de détente dans un environnement paisible et verdoyant et une cour avec trois places de stationnement. La villa bénéficie d’une architecture moderne, pensée pour maximiser l’espace et la lumière. Frais de notaire réduits et livraison prévue pour le deuxième trimestre 2026. N’hésitez plus et contactez-nous pour plus de renseignements. Les informations sur les risques auxquels ce bien est exposé sont disponibles sur le site www.georisques.gouv.fr.
Voir plus

Référence: 318/17
Honoraires à la charge du vendeur.

Prêt immobilier

Vous souhaitez connaître votre capacité d’emprunt et trouver le meilleur crédit immobilier ?
Réaliser une simulation gratuite

Maison à VEIGY-FONCENEX
Maison à VEIGY-FONCENEX
Maison à VEIGY-FONCENEX
Ce site est protégé par reCAPTCHA la Politique de confidentialité et les Conditions d’utilisation de Google s’appliquent.
Obtenir un prêt immobilier au meilleur taux ?

En poursuivant votre navigation sans modifier vos paramètres, vous acceptez l'utilisation de cookies susceptibles de réaliser des statistiques de visite. Cliquez ici pour plus d'informations