Bénéficiez des services de nos partenaires locaux soigneusement sélectionnés
pour vous accompagner dans votre parcours d'achat immobilier

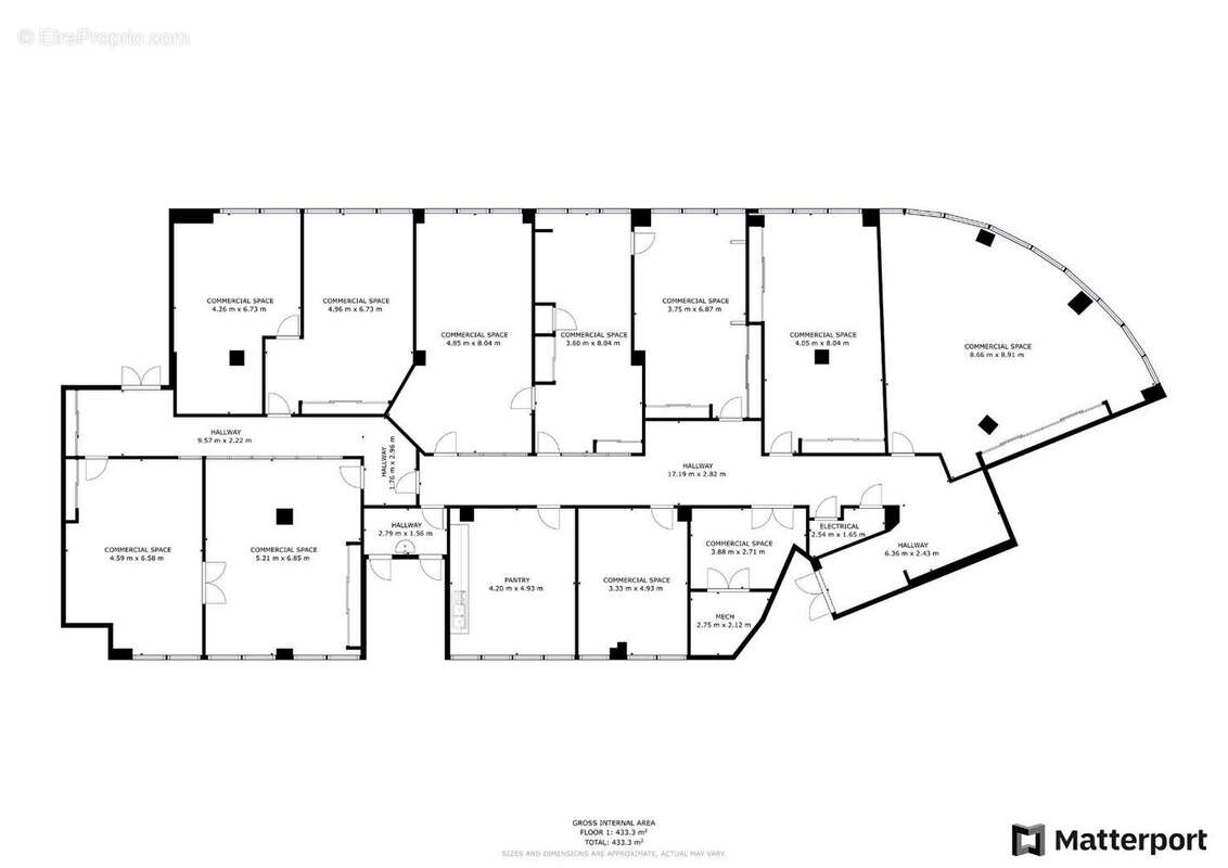
Aménagez un appartement dans ce plateau de 206 m² à une adresse d'exception

— Grenoble 38000 —
300 000 €
206 m²
7 pièces
ascenseur

Nos partenaires locaux
Stéphane Plaza immobilier VIF Vous propose une opportunité rare dans un immeuble historique de Grenoble . Idéalement situé 26 rue Colonel Dumont, au sein d'un immeuble emblématique des années 50, dont la façade classée monument historique confère un cachet unique, ce bien rare saura séduire les amateurs de prestige et d'authenticité. Au 2ème étage avec ascenseur, cet espace d'actuellement 412 m² aménagé en bureaux offre un potentiel exceptionnel. Selon vos besoins, il peut être conservé dans son ensemble ou divisé en deux lots d'environ prix selon vue et nombre de m² désiré, permettant une flexibilité totale d'aménagement et de prix. Vous l'aurez comprit, ce plateau est à aménager selon votre convenance, d'où sont prix particulièrement attractif ! Que vous souhaitiez en faire un appartement de standing ou des espaces professionnels élégants, cette adresse privilégiée en plein centre de Grenoble est une opportunité rare sur le marché. Offrez-vous un bien à la hauteur de vos exigences. Contactez-nous dès aujourd'hui pour une visite privée et une étude sur-mesure de votre projet. Charges copropriété 320 euros/mois Copropriété de 76 lots - dont 28 lots habitation. (Pas de procédure en cours). Charges annuelles : 4500 euros.
Voir plus

Référence: 567
Bien en copropriété. Nombre de lots : 76. Charges de copropriété : 4500 €.
Honoraires à la charge du vendeur.
Barème des honoraires

Prêt immobilier

Vous souhaitez connaître votre capacité d’emprunt et trouver le meilleur crédit immobilier ?
Réaliser une simulation gratuite

Appartement à GRENOBLE
Appartement à GRENOBLE
Appartement à GRENOBLE
Appartement à GRENOBLE
Appartement à GRENOBLE
Appartement à GRENOBLE
Appartement à GRENOBLE
Appartement à GRENOBLE
Appartement à GRENOBLE
Appartement à GRENOBLE
Appartement à GRENOBLE
Appartement à GRENOBLE
Appartement à GRENOBLE
Appartement à GRENOBLE
Appartement à GRENOBLE
Appartement à GRENOBLE
Appartement à GRENOBLE
Appartement à GRENOBLE
Ce site est protégé par reCAPTCHA la Politique de confidentialité et les Conditions d’utilisation de Google s’appliquent.
Obtenir un prêt immobilier au meilleur taux ?

En poursuivant votre navigation sans modifier vos paramètres, vous acceptez l'utilisation de cookies susceptibles de réaliser des statistiques de visite. Cliquez ici pour plus d'informations