Appartement 36m² à castelnau-le-lez

— Castelnau-Le-Lez 34170 —
169 900 €
37 m²
2 pièces
parkingbalcon/terrasse

À VENDRE - Appartement T2 avec balcon et parking à Castelnau-le-Lez (34)

Localisation : Castelnau-le-Lez
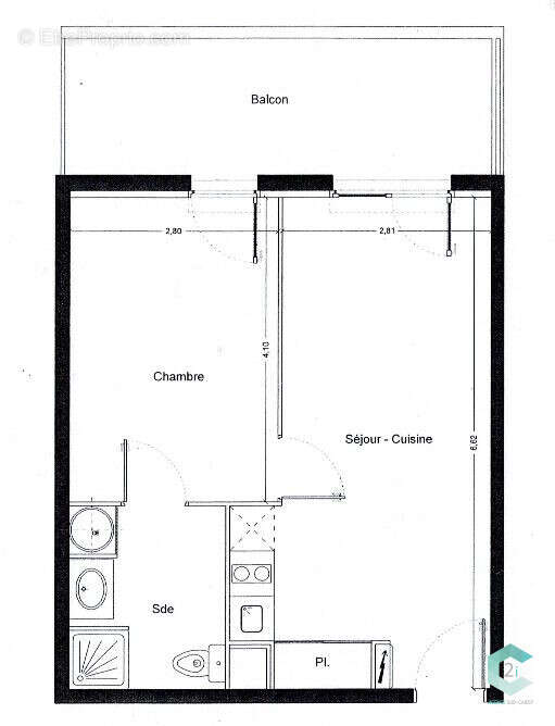
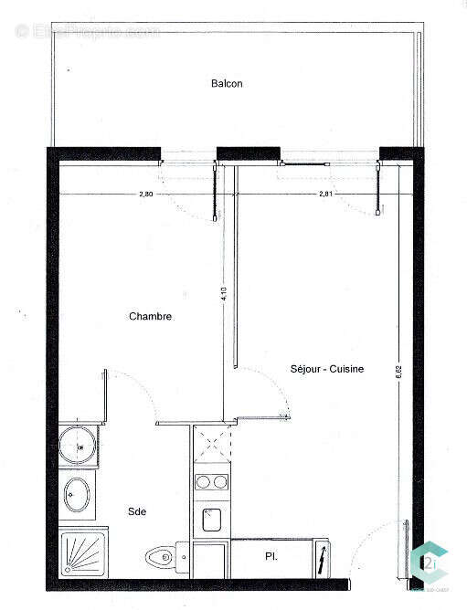
Type : Appartement T2 – Idéal investissement locatif
Etage : 2ème et dernier étage
Stationnement : Place de parking en résidence sécurisée
Extérieur : Grand balcon de 10m²

Situé dans une résidence sécurisée, cet appartement lumineux et fonctionnel offre un cadre de vie agréable, à proximité des commodités et des transports.
L'appartement vous propose une entrée avec placard, menant à un vaste séjour de 20m² avec son espace cuisine. La chambre, d'une superficie de près de 12m², ainsi que le séjour, s'ouvrent sur un grand balcon de 10m², parfait pour profiter de l'extérieur en toute tranquillité. Vous y trouverez également une salle d'eau avec WC.

Informations financières :

Loyer mensuel hors charges : 581€ + charges 44€ = 625€ loyer total
Garage en supplément : 45€/mois de loyer perçu
Charges de copropriété : 100€/moisTaxe foncière : 976€

Ce bien sera idéal pour un premier investissement dans l'immobilier locatif, offrant plusieurs possibilités en terme de projets pour l'avenir. Offre à faire !

Contactez-nous dès maintenant pour plus d'informations ou organiser une visite !

Honoraires à la charge du vendeur. Dans une copropriété de 116 lots. Aucune procédure n'est en cours. DPE en cours. Les informations sur les risques auxquels ce bien est exposé sont disponibles sur le site Géorisques : georisques.gouv.fr.
Voir plus

Référence: VA3086-C2ISUDOUEST2
Bien en copropriété. Nombre de lots : 116.
Honoraires à la charge du vendeur.
Barème des honoraires
DPE
A
B
C
D
E
F
G
GES
A
B
C
D
E
F
G

Prêt immobilier

Vous souhaitez connaître votre capacité d’emprunt et trouver le meilleur crédit immobilier ?
Réaliser une simulation gratuite

Appartement à CASTELNAU-LE-LEZ
Appartement à CASTELNAU-LE-LEZ
Appartement à CASTELNAU-LE-LEZ
Appartement à CASTELNAU-LE-LEZ
Appartement à CASTELNAU-LE-LEZ
Appartement à CASTELNAU-LE-LEZ
Appartement à CASTELNAU-LE-LEZ
Appartement à CASTELNAU-LE-LEZ
Appartement à CASTELNAU-LE-LEZ
Ce site est protégé par reCAPTCHA la Politique de confidentialité et les Conditions d’utilisation de Google s’appliquent.
Obtenir un prêt immobilier au meilleur taux ?

En poursuivant votre navigation sans modifier vos paramètres, vous acceptez l'utilisation de cookies susceptibles de réaliser des statistiques de visite. Cliquez ici pour plus d'informations