Appartement 77 m2 3 pièces suresnes val d'or

— Suresnes 92150 —
465 000 €
77 m²
3 pièces
parkingbalcon/terrasse

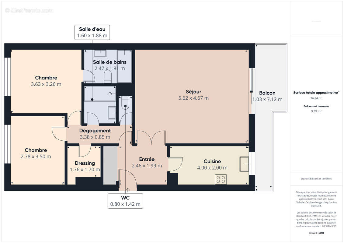
Pour les adeptes du tout à pied, Suresnes Limite Saint cloud, à proximité des transports ( T2 les côteaux à 700 m et Ligne L Saint Lazare à 450 m) , des commerces et des écoles, au sein d'une copropriété de 1980 très arborée en pleine transformation ( travaux votés / Ravalement avec isolation, production d'eau chaude, étanchéité toiture, porte d'entrée ) un appartement situé au 1er étage de 3 pièces de 77 m2 composé d'un grand séjour lumineux , s'ouvrant sur un balcon de prés de 10 m2, une cuisine, deux chambres, deux pièces d'eau ( salle de bain et salle d'eau), un dressing et deux WC. Double vitrage. Nombreux rangements. Exposition EST/OUEST. Résidence sécurisée. Une cave complète le bien. Parking en sus ( 15000 €) . Prix 465000€ . Honoraires charge vendeur.
Voir plus

Bien en copropriété. Charges de copropriété : 4368 €.
Barème des honoraires
DPE
A
B
C
D
E
F
G
GES
A
B
C
D
E
F
G

Prêt immobilier

Vous souhaitez connaître votre capacité d’emprunt et trouver le meilleur crédit immobilier ?
Réaliser une simulation gratuite

Appartement à SURESNES
Appartement à SURESNES
Appartement à SURESNES
Appartement à SURESNES
Appartement à SURESNES
Appartement à SURESNES
Appartement à SURESNES
Appartement à SURESNES
Appartement à SURESNES
Appartement à SURESNES
Appartement à SURESNES
Ce site est protégé par reCAPTCHA la Politique de confidentialité et les Conditions d’utilisation de Google s’appliquent.
Obtenir un prêt immobilier au meilleur taux ?

En poursuivant votre navigation sans modifier vos paramètres, vous acceptez l'utilisation de cookies susceptibles de réaliser des statistiques de visite. Cliquez ici pour plus d'informations