Bénéficiez des services de nos partenaires locaux soigneusement sélectionnés
pour vous accompagner dans votre parcours d'achat immobilier

Voir tous les partenaires locaux

Strasbourg - forêt noire - 5 pièces de 145m2

— Strasbourg 67000 —
890 800 €
145 m²
5 pièces
ascenseur

Nos partenaires locaux
En Exclusivité!
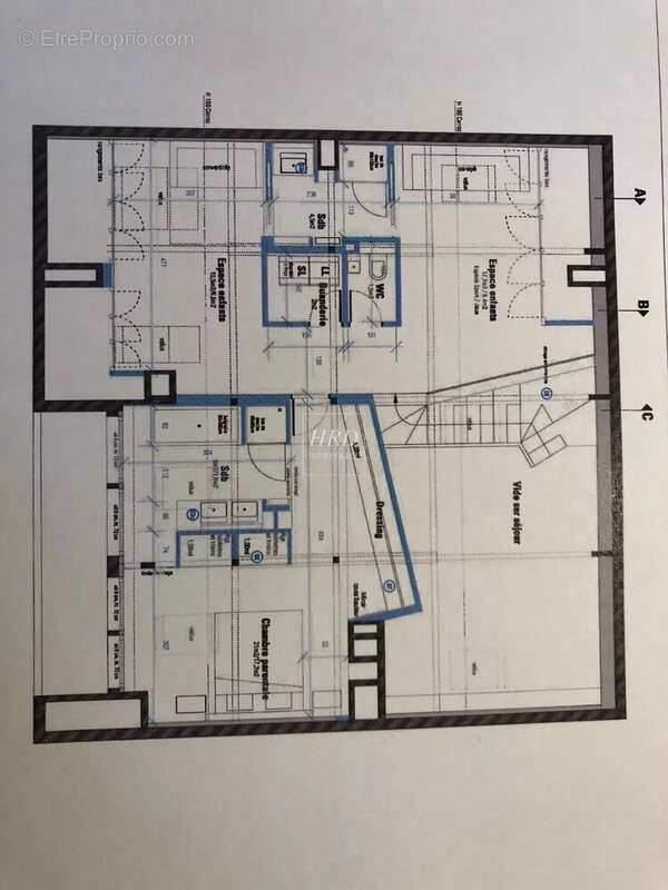
Au dernier étage d'un bel immeuble de 1893, ce magnifique appartement de 5 pièces en duplex se compose au RDC d'une entrée, d'une cuisine équipée ouverte sur la pièce de vie avec cheminée, 75m2 au total donnant par de larges baies vitrées sur une belle terrasse exposée Sud-0uest.
Au même niveau, une chambre avec sa salle d'eau, de nombreux rangements, un cellier, des toilettes séparés.
A l'étage, une grande chambre parentale avec sa salle de bains, un dressing, une petite chambre d'enfants ou bureau, une salle d'eau, une mezzanine ou chambre supplémentaire, un espace buanderie et des toilettes séparés.
Rénové récemment par un architecte, cet appartement saura vous séduire par son charme et sa luminosité.
Climatisation, tram à 6 minutes, commerces au pied de l'immeuble.

En sous sol, une cave vient compléter ce bien.

HRD IMMOBILIÈRE DE L'ORANGERIE
[Coordonnées masquées] - [Coordonnées masquées]
Patrice HEILIGENSTEIN - [Coordonnées masquées]
[Coordonnées masquées]

« Les informations sur les risques auxquels ce bien est exposé sont disponibles sur le site Géorisques http://www.georisques.gouv.fr »
Voir plus

Référence: 85740076
Barème des honoraires
DPE
A
B
C
D
E
F
G
GES
A
B
C
D
E
F
G

Prêt immobilier

Vous souhaitez connaître votre capacité d’emprunt et trouver le meilleur crédit immobilier ?
Réaliser une simulation gratuite

Appartement à STRASBOURG
Appartement à STRASBOURG
Appartement à STRASBOURG
Appartement à STRASBOURG
Appartement à STRASBOURG
Appartement à STRASBOURG
Appartement à STRASBOURG
Appartement à STRASBOURG
Appartement à STRASBOURG
Appartement à STRASBOURG
Appartement à STRASBOURG
Appartement à STRASBOURG
Appartement à STRASBOURG
Appartement à STRASBOURG
Appartement à STRASBOURG
Appartement à STRASBOURG
Appartement à STRASBOURG
Appartement à STRASBOURG
Appartement à STRASBOURG
Appartement à STRASBOURG
Appartement à STRASBOURG
Appartement à STRASBOURG
Appartement à STRASBOURG
Appartement à STRASBOURG
Appartement à STRASBOURG
Appartement à STRASBOURG
Appartement à STRASBOURG
Ce site est protégé par reCAPTCHA la Politique de confidentialité et les Conditions d’utilisation de Google s’appliquent.
Obtenir un prêt immobilier au meilleur taux ?

En poursuivant votre navigation sans modifier vos paramètres, vous acceptez l'utilisation de cookies susceptibles de réaliser des statistiques de visite. Cliquez ici pour plus d'informations