Bénéficiez des services de nos partenaires locaux soigneusement sélectionnés
pour vous accompagner dans votre parcours d'achat immobilier

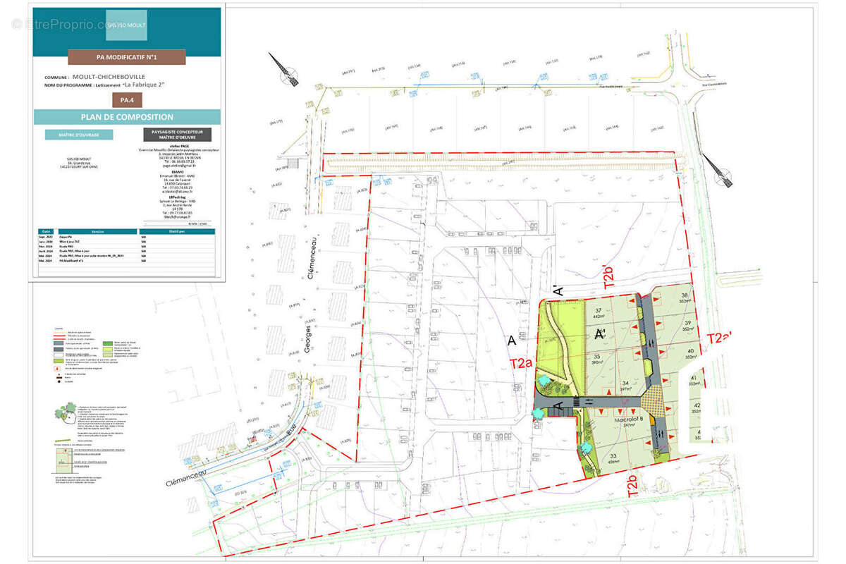
Terrain / macrolot moult - lot c - 775 m2

— Moult 14370 —
120 000 €
775 m²
jardinascenseur

Nos partenaires locaux
Vous souhaitez acheter un terrain sur la commune de MOULT? A 20 km de CAEN Programme de 43 terrains viabilisés et Libre choix de constructeur -Permis de construire déposable en Janvier 2026 Plusieurs lots sont disponibles, les terrains proposés sont d'une surface de 337 m² à 637 m² + 3 MACROLOTS disponibles: Lot A : 392 m² - 80 000 euros (surface de plancher 300 m²) Lot B : 598 m² - 120 000 euros (surface de plancher 420 m²) Lot C : 775 m² - 120 000 euros (surface de plancher 500 m²) Contactez-nous pour plus d'informations.
Voir plus

Référence: 755
Barème des honoraires

Prêt immobilier

Vous souhaitez connaître votre capacité d’emprunt et trouver le meilleur crédit immobilier ?
Réaliser une simulation gratuite

Terrain à MOULT
Terrain à MOULT
Terrain à MOULT
Terrain à MOULT
Ce site est protégé par reCAPTCHA la Politique de confidentialité et les Conditions d’utilisation de Google s’appliquent.
Obtenir un prêt immobilier au meilleur taux ?

En poursuivant votre navigation sans modifier vos paramètres, vous acceptez l'utilisation de cookies susceptibles de réaliser des statistiques de visite. Cliquez ici pour plus d'informations