Bénéficiez des services de nos partenaires locaux soigneusement sélectionnés
pour vous accompagner dans votre parcours d'achat immobilier

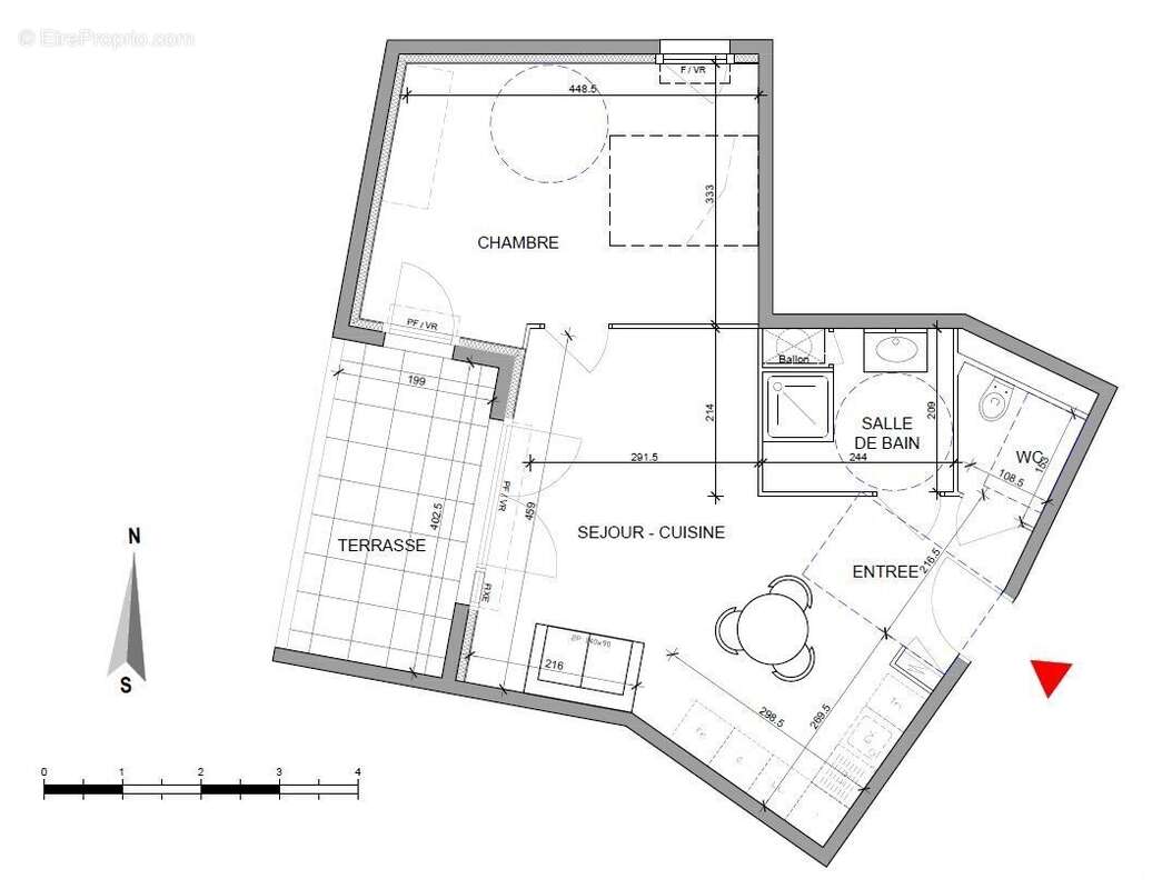
Appartement 51m² à cagnes-sur-mer

— Cagnes-Sur-Mer 06800 —
273 000 €
51 m²
2 pièces

Nos partenaires locaux
Iad France - Mathieu Condro ([Coordonnées masquées]) vous propose : Superbe appartement 3 pièces avec grand jardin privatif

Venez découvrir ce T3 de 66,52 m² environ, offrant de beaux volumes et un cadre de vie agréable. Il se compose de :
Un vaste séjour avec cuisine ouverte de 29,41 m² environ, idéal pour recevoir
Deux chambres confortables, dont une de 13,04 m² environ
Une salle d'eau et un WC séparé, pour plus de confort
Une entrée avec dégagement optimisant l'espace

Extérieur exceptionnel :

Une terrasse de 7,59 m² environ, parfaite pour les repas en extérieur
Un jardin privatif de 178,09 m² environ, un vrai havre de paix
Idéalement situé, cet appartement est parfait pour une famille ou un couple en quête d'espace et de tranquillité.

Contactez-nous pour une visite !

Honoraires d'agence à la charge du vendeur. Bien non soumis au DPE. Les informations sur les risques auxquels ce bien est exposé sont disponibles sur le site Géorisques : www.georisques.gouv.fr. La présente annonce immobilière a été rédigée sous la responsabilité éditoriale de M. Mathieu Condro EI (ID 72418), mandataire indépendant en immobilier (sans détention de fonds), agent commercial de la SAS I@D France immatriculé au RSAC de ANTIBES sous le numéro 920434529, titulaire de la carte de démarchage immobilier pour le compte de la société I@D France SAS.
Retrouvez tous nos biens sur notre site internet. www.iadfrance.fr.
Informations LOI ALUR :
Honoraires charge vendeur. (gedeon_6727_30636587)
Voir plus

Référence: 1633488-31
Honoraires à la charge du vendeur.

Prêt immobilier

Vous souhaitez connaître votre capacité d’emprunt et trouver le meilleur crédit immobilier ?
Réaliser une simulation gratuite

Photo 1 - Appartement à CAGNES-SUR-MER
Photo 1
Photo 2 - Appartement à CAGNES-SUR-MER
Photo 2
Photo 3 - Appartement à CAGNES-SUR-MER
Photo 3
Photo 4 - Appartement à CAGNES-SUR-MER
Photo 4
Photo 5 - Appartement à CAGNES-SUR-MER
Photo 5
Photo 6 - Appartement à CAGNES-SUR-MER
Photo 6
Photo 7 - Appartement à CAGNES-SUR-MER
Photo 7
Photo 8 - Appartement à CAGNES-SUR-MER
Photo 8
Photo 9 - Appartement à CAGNES-SUR-MER
Photo 9
Ce site est protégé par reCAPTCHA la Politique de confidentialité et les Conditions d’utilisation de Google s’appliquent.
Obtenir un prêt immobilier au meilleur taux ?

En poursuivant votre navigation sans modifier vos paramètres, vous acceptez l'utilisation de cookies susceptibles de réaliser des statistiques de visite. Cliquez ici pour plus d'informations