Bénéficiez des services de nos partenaires locaux soigneusement sélectionnés
pour vous accompagner dans votre parcours d'achat immobilier

Appartement 32m² à avon

— Avon 77210 —
110 000 €
32 m²
2 pièces
parking

Nos partenaires locaux
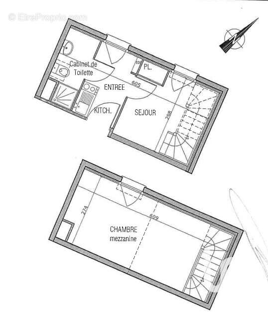
Iad France - Claire Hontarede vous propose : À vendre, F2 en duplex de plus de 32 m² situé au 3ème et dernier étage de la RESIDENCE ETUDIANTE des Arts et Métiers de Avon.

Composition : Rez-de-chaussée : entrée dans la cuisine, salle d'eau avec wc, petit salon avec rangements.
À l'étage une grande chambre de 13,5 m².

Gardien sur place 5jr / 7 - Laverie au rdc de la résidence - une place de parking en sous-sol vendue avec le duplex.
Actuellement loué, vendu meublé.
Résidence étudiante avec une localisation idéale entre Fontainebleau et Avon construite en 2006.

N'hésitez pas à me contacter pour plus de renseignements ou pour organiser une visite.


La presente annonce immobiliere vise 2 lots situés dans une copropriété de 148 lots au total et ne faisant l'objet d'aucune procédure en cours citée à l'article L. 721-1 du code de la construction et de l'habitation. Montant moyen mensuel de charges déclaré par le vendeur : 191.33¤ par mois (soit 2296 ¤ annuel). Honoraires d'agence à la charge du vendeur.
Information d'affichage énergétique sur ce bien : classe ENERGIE E indice 297 et classe CLIMAT B indice 9. Les informations sur les risques auxquels ce bien est exposé, y compris l'obligation légale de débroussaillement, sont disponibles sur le site Géorisques : http://www.georisques.gouv.fr.
La présente annonce immobilière a été rédigée sous la responsabilité éditoriale de Mme Claire Hontarede mandataire indépendant en immobilier (sans détention de fonds), agent commercial de la SAS I@D France immatriculé au RSAC de Melun sous le numéro 877850958, titulaire de la carte de démarchage immobilier pour le compte de la société I@D France SAS.
Informations LOI ALUR :
Soumis au régime de copropriété.
Nombre de lots : 148.
Quote part annuelle(moyenne) : 2296 euros.
Honoraires charge vendeur. (gedeon_6727_30945959)
Voir plus

Référence: 1710655
Bien en copropriété. Nombre de lots : 148. Charges de copropriété : 2296 €.
Honoraires à la charge du vendeur.
DPE
A
B
C
D
E
F
G
GES
A
B
C
D
E
F
G

Prêt immobilier

Vous souhaitez connaître votre capacité d’emprunt et trouver le meilleur crédit immobilier ?
Réaliser une simulation gratuite

Photo 1 - Appartement à AVON
Photo 1
Photo 2 - Appartement à AVON
Photo 2
Photo 3 - Appartement à AVON
Photo 3
Photo 4 - Appartement à AVON
Photo 4
Photo 5 - Appartement à AVON
Photo 5
Photo 6 - Appartement à AVON
Photo 6
Photo 7 - Appartement à AVON
Photo 7
Photo 8 - Appartement à AVON
Photo 8
Ce site est protégé par reCAPTCHA la Politique de confidentialité et les Conditions d’utilisation de Google s’appliquent.
Obtenir un prêt immobilier au meilleur taux ?

En poursuivant votre navigation sans modifier vos paramètres, vous acceptez l'utilisation de cookies susceptibles de réaliser des statistiques de visite. Cliquez ici pour plus d'informations