Propriété avec deux maisons et un hangar

— Parleboscq 40310 —
145 000 €
136 m² / 23 492 m²
5 pièces
balcon/terrasse

Propriété comprenant deux résidences et un grand hangar.

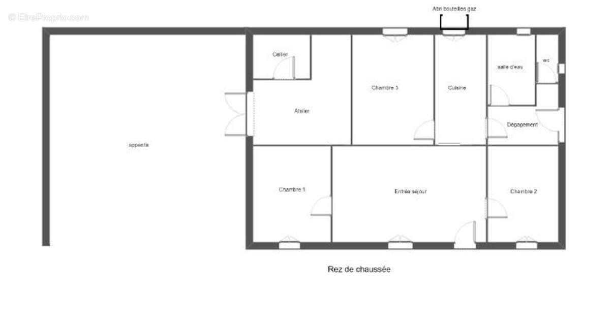
La maison principale, d'une superficie de 82 m², dispose d'un séjour équipé d'un insert à granulés, d'une cuisine, de trois chambres, d'une salle d'eau et d'un WC indépendant, d'un atelier de 17 m2 et d'un appentis de 70 m2.

Des travaux de remise à niveau sont à prévoir.

La seconde maison, d'une superficie de 54 m², nécessite une rénovation complète et se compose de quatre pièces.

Le hangar mesure 157 m² avec un appentis de 78 m2

Le terrain s'étend sur 23 492 m².

Taxe foncière: 155E

Assainissement autonome non conforme.

L'emplacement bénéficie d'un cadre paisible dans un petit hameau, à seulement 5 minutes du village voisin et de ses services.

.Les informations sur les risques auxquels ce bien est exposé sont disponibles sur le site Géorisques : www. georisques. gouv. fr.Pour plus d'informations et pour une visite, contactez Hervé DESPLAT : CLAIRIMMO Barbotan - 3 avenue des Thermes 32150 CAZAUBON - Service Transaction : [Coordonnées masquées] Service Location : [Coordonnées masquées] email : [Coordonnées masquées] RCS 851 986 620 Agent commercial indépendant du réseau national Clairimmo N° RSAC : 495 108 755
Voir plus

Référence: 11416DQ612
Honoraires à la charge du vendeur.
DPE
A
B
C
D
E
F
G
GES
A
B
C
D
E
F
G

Prêt immobilier

Vous souhaitez connaître votre capacité d’emprunt et trouver le meilleur crédit immobilier ?
Réaliser une simulation gratuite

Maison à PARLEBOSCQ
Maison à PARLEBOSCQ
Maison à PARLEBOSCQ
Maison à PARLEBOSCQ
Maison à PARLEBOSCQ
Maison à PARLEBOSCQ
Maison à PARLEBOSCQ
Maison à PARLEBOSCQ
Maison à PARLEBOSCQ
Maison à PARLEBOSCQ
Maison à PARLEBOSCQ
Maison à PARLEBOSCQ
Maison à PARLEBOSCQ
Maison à PARLEBOSCQ
Maison à PARLEBOSCQ
Maison à PARLEBOSCQ
Maison à PARLEBOSCQ
Maison à PARLEBOSCQ
Maison à PARLEBOSCQ
Maison à PARLEBOSCQ
Maison à PARLEBOSCQ
Maison à PARLEBOSCQ
Maison à PARLEBOSCQ
Maison à PARLEBOSCQ
Maison à PARLEBOSCQ
Maison à PARLEBOSCQ
Maison à PARLEBOSCQ
Maison à PARLEBOSCQ
Maison à PARLEBOSCQ
Ce site est protégé par reCAPTCHA la Politique de confidentialité et les Conditions d’utilisation de Google s’appliquent.
Obtenir un prêt immobilier au meilleur taux ?

En poursuivant votre navigation sans modifier vos paramètres, vous acceptez l'utilisation de cookies susceptibles de réaliser des statistiques de visite. Cliquez ici pour plus d'informations