Bénéficiez des services de nos partenaires locaux soigneusement sélectionnés
pour vous accompagner dans votre parcours d'achat immobilier

Maison de ville a vendre

— Bussy-Saint-Georges 77600 —
470 000 €
128 m²
5 pièces
parking

Nos partenaires locaux
Anne MAUDUIT vous présente ce bien :
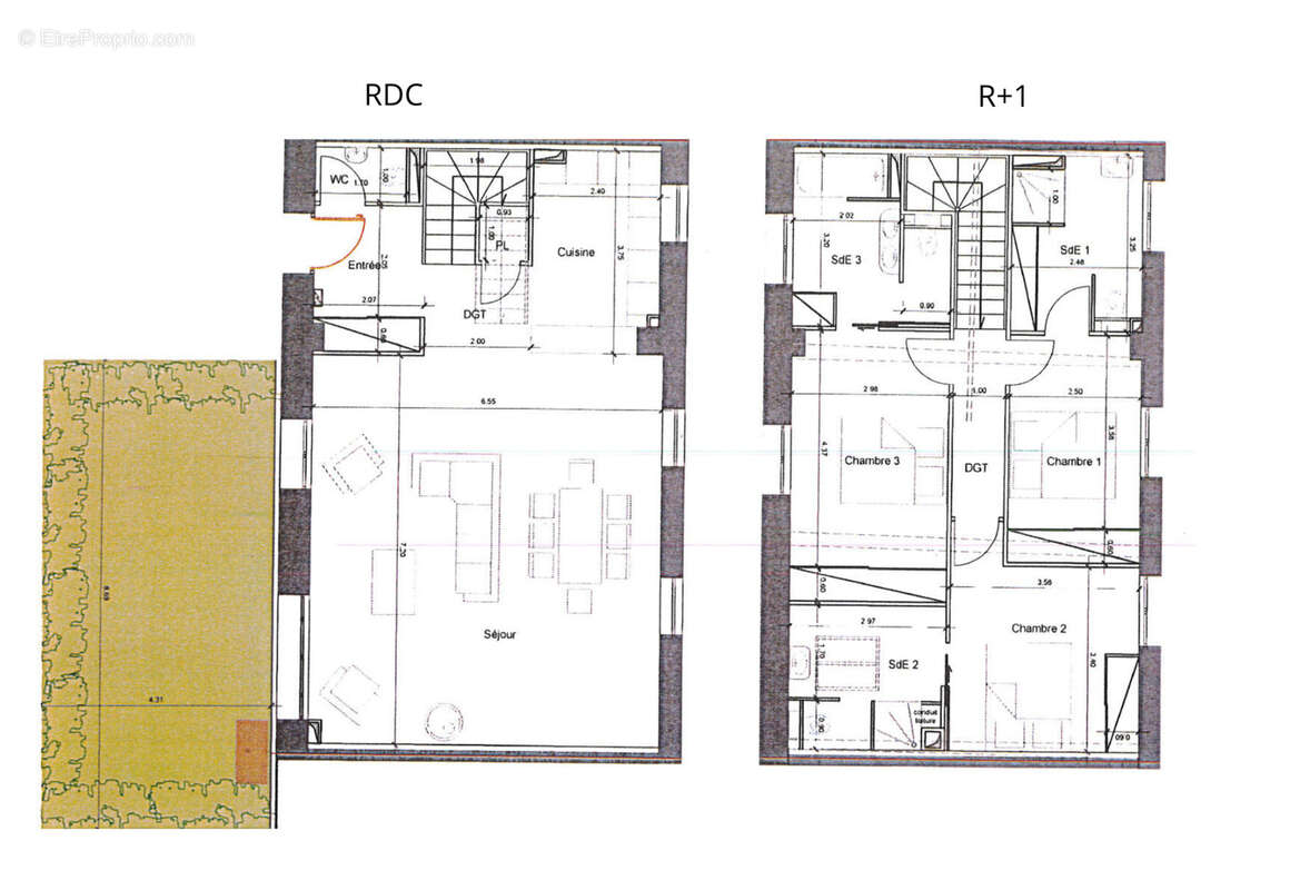
Maison 128 m2 + grenier aménageable + jardin de 25 m2 Disponible en novembre 2025
A Bussy-Saint-Georges, découvrez une maison de ville complètement rénovée et pensée pour ceux qui veulent conjuguer confort moderne, volumes généreux, et cadre de vie serein .
Implantée dans une cour intérieure, cette maison fait partie d'un ancien corps de ferme entièrement réhabilité avec des matériaux de qualité.
Au rez-de-chaussée , vous serez accueillis par une très belle pièce de vie de plus de 64 m2 , baignée de lumière naturelle. Elle offre un grand séjour et une cuisine ouverte à aménager selon vos envies. Cet espace convivial donne directement sur un jardin privatif de 25 m2, idéal pour vos repas en extérieur ou vos moments de détente. Un WC indépendant est également présent à ce niveau pour plus de praticité.
À l' étage, le confort est au rendez-vous avec trois suites, chacune équipée de sa propre salle d'eau et de WC privatifs. Cette configuration garantit à chaque occupant un maximum d'intimité, un vrai luxe dans l'habitat contemporain.
Le grenier de 30 à 40 m2 offre une surface supplémentaire à aménager selon vos besoins : salle de jeux, bureau, chambre d'appoint… tout est possible.
Prestations haut de gamme :

Pompe à chaleur air/air au rez-de-chaussée
Convecteurs à inertie douce à l'étage
Menuiseries PVC double ou triple vitrage (selon l'exposition)
Volets roulants électriques
Isolation renforcée (R32)
Ballon d'eau chaude de 300 L
WC suspendus, douches grand format, robinetterie design
Parquet dans les chambres, carrelage grand format au sol au RDC
2 places de stationnement privatives


La maison se situe au sein d'une copropriété à taille humaine avec des charges réduites (environ 80 € par mois), comprenant l'entretien des espaces communs : portail, éclairage, local vélos, etc.
Située à seulement 10 minutes du Val d'Europe , proche des écoles, des commerces, des axes routiers et de la gare RER , cette maison vous place dans un environnement pratique, calme et en plein essor.
Résumé :

Surface : 128 m2 + grenier aménageable 30/40 m2
Jardin privatif de 25 m2
3 suites avec salles d'eau et WC
Grande pièce de vie lumineuse
2 places de stationnement
Disponible en novembre 2025
Charges de copropriété estimées : 80 € / mois

Une opportunité rare d'acquérir une maison au charme unique, dans un secteur recherché et en pleine évolution.
Contactez-nous dès aujourd'hui pour organiser une visite (agent immobilier à proximité pour une visite rapide).
Voir plus

Référence: 7290
Bien en copropriété. Charges de copropriété : 960 €.
Honoraires à la charge du vendeur.
Barème des honoraires

Prêt immobilier

Vous souhaitez connaître votre capacité d’emprunt et trouver le meilleur crédit immobilier ?
Réaliser une simulation gratuite

Maison à BUSSY-SAINT-GEORGES
Maison à BUSSY-SAINT-GEORGES
Maison à BUSSY-SAINT-GEORGES
Maison à BUSSY-SAINT-GEORGES
Maison à BUSSY-SAINT-GEORGES
Maison à BUSSY-SAINT-GEORGES
Maison à BUSSY-SAINT-GEORGES
Maison à BUSSY-SAINT-GEORGES
Ce site est protégé par reCAPTCHA la Politique de confidentialité et les Conditions d’utilisation de Google s’appliquent.
Obtenir un prêt immobilier au meilleur taux ?

En poursuivant votre navigation sans modifier vos paramètres, vous acceptez l'utilisation de cookies susceptibles de réaliser des statistiques de visite. Cliquez ici pour plus d'informations