Bénéficiez des services de nos partenaires locaux soigneusement sélectionnés
pour vous accompagner dans votre parcours d'achat immobilier

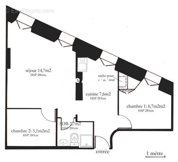
Appartement 35m² à marseille-3e

— Marseille-3e 13003 —
60 000 €
35 m²
2 pièces

Nos partenaires locaux
' LA BELLE OPPORTUNITÉ '


La Belle de Mai - 3EME ARRONDISSEMENT


Idéalement situé en plein coeur de la Belle de Mai à côté de nombreuses proximités (transports, commerces...), THE AGENCY vous propose en exclusivité cet appartement de type 2/3 au 3ème et dernier étage sans ascenseur.


Il est composé d'une cuisine indépendante, d'un séjour, d'une chambre, d'une salle d'eau avec WC et d'un bureau pouvant servir de 2nde chambre.


L'immeuble est en situation de péril et un dossier de prise en charge par l'Anah a été déposé.

L'acquéreur se verra reversé le montant du remboursement, soit jusqu'à 46000€ à la fin des travaux une fois celui-ci accordé.

Vous pourrez donc ensuite bénéficier d'une excellente rentabilité.


Charges : 70.00€ /mois
Taxe Foncière : 594.00€ /an

'The Agency la Révolution Immobilière…'


Honoraires inclus de 13.21% TTC à la charge de l'acquéreur. Prix hors honoraires 53 000 €. Dans une copropriété de 14 lots. Quote-part moyenne du budget prévisionnel 840 €/an. Aucune procédure n'est en cours. DPE vierge. Les informations sur les risques auxquels ce bien est exposé sont disponibles sur le site Géorisques : georisques.gouv.fr.

Votre conseiller The Agency : Jean Bastien COSSU
Agent commercial (Entreprise individuelle)
Voir plus

Référence: VA3299-THEAGENCY
Bien en copropriété. Nombre de lots : 14. Charges de copropriété : 840 €.
Honoraires d'agence de 13.21% à la charge de l'acquéreur
Barème des honoraires

Prêt immobilier

Vous souhaitez connaître votre capacité d’emprunt et trouver le meilleur crédit immobilier ?
Réaliser une simulation gratuite

Appartement à MARSEILLE-3E
Appartement à MARSEILLE-3E
Appartement à MARSEILLE-3E
Appartement à MARSEILLE-3E
Appartement à MARSEILLE-3E
Appartement à MARSEILLE-3E
Appartement à MARSEILLE-3E
Appartement à MARSEILLE-3E
Appartement à MARSEILLE-3E
Ce site est protégé par reCAPTCHA la Politique de confidentialité et les Conditions d’utilisation de Google s’appliquent.
Obtenir un prêt immobilier au meilleur taux ?

En poursuivant votre navigation sans modifier vos paramètres, vous acceptez l'utilisation de cookies susceptibles de réaliser des statistiques de visite. Cliquez ici pour plus d'informations