Terrain 514m2 - pc obtenu et purgé

— Morestel 38510 —
79 000 €
514 m²
parkingbalcon/terrassejardin

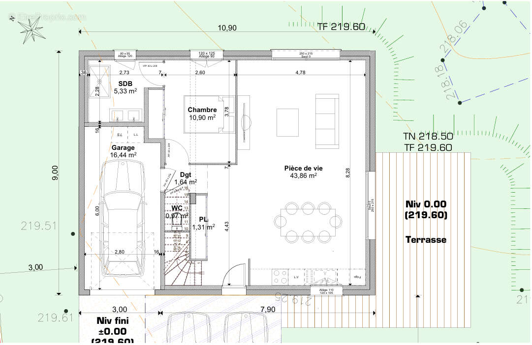
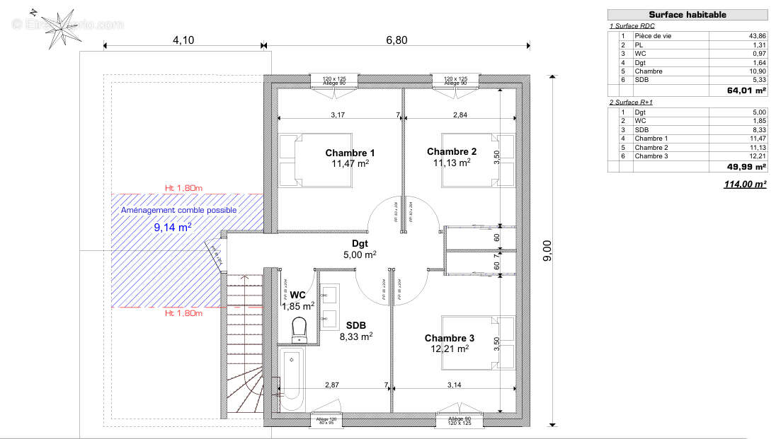
Dernière opportunité ! Emotion immobilier vous propose à la vente ce terrain d'une surface de 514m2. Situé dans un lotissement récemment aménagé, proche de l'ensemble des commodités qu'offre la ville de Morestel, ce terrain viabilisé avec permis de construire accepté et purgé vous permettra d'édifier votre futur lieu de vie. Le PC concerne une maison d'env 114m2 en R+1 avec 4 ch dont 1 suite, 2 salle de bains, 2 WC et 1 garage. Nous pouvons également vous accompagnez dans la réalisation de votre projet de construction. Visite et informations auprès de Maxime CROLLARD, gérant, ou directement dans votre agence Emotion Meximieux.
Voir plus

Référence: 622
Honoraires à la charge du vendeur.
Barème des honoraires

Prêt immobilier

Vous souhaitez connaître votre capacité d’emprunt et trouver le meilleur crédit immobilier ?
Réaliser une simulation gratuite

Terrain à MORESTEL
Terrain à MORESTEL
Terrain à MORESTEL
Terrain à MORESTEL
Terrain à MORESTEL
Ce site est protégé par reCAPTCHA la Politique de confidentialité et les Conditions d’utilisation de Google s’appliquent.
Obtenir un prêt immobilier au meilleur taux ?

En poursuivant votre navigation sans modifier vos paramètres, vous acceptez l'utilisation de cookies susceptibles de réaliser des statistiques de visite. Cliquez ici pour plus d'informations