Bénéficiez des services de nos partenaires locaux soigneusement sélectionnés
pour vous accompagner dans votre parcours d'achat immobilier

Appartement 162m² à merignac

— Merignac 33700 —
869 000 €
162 m²
5 pièces
parkingbalcon/terrasseascenseur

Nos partenaires locaux
PRESTATIONS - CONFORT - VOLUMES - EMPLACEMENT

À quelques minutes de Bordeaux, cette résidence à taille humaine avec ascenseur profite d'une excellente desserte grâce au tramway A et aux grands axes routiers, facilitant ainsi les déplacements quotidiens. À proximité immédiate, commerces, restaurants et services essentiels offrent un confort de vie appréciable, tandis que les établissements scolaires et infrastructures sportives en font un secteur recherché par les familles. Mérignac séduit également par ses nombreux espaces verts, tels que le Parc de Bourran, propice aux promenades et aux activités de plein air. L'aéroport, accessible en quelques minutes, constitue un atout supplémentaire pour les voyageurs fréquents. Alliant accessibilité, sérénité et qualité de vie, cet emplacement constitue un cadre parfait pour profiter pleinement du confort de cet appartement d'exception.

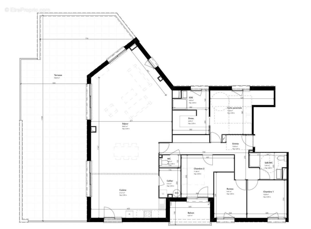
Cet appartement situé au dernier étage offre un cadre de vie exceptionnel grâce à ses volumes généreux et ses prestations de qualité. Avec une surface habitable de 162m2, il se compose d'une vaste pièce de vie lumineuse de 80m2, prolongée par une terrasse de 98m2 et un balcon de 6m2, offrant ainsi de beaux espaces extérieurs. La cuisine spacieuse, attenante au séjour, est complétée par un cellier fonctionnel. L'appartement dispose d'une suite parentale avec dressing et salle d'eau privative, de deux chambres supplémentaires, d'un bureau/chambre idéal pour le télétravail, ainsi que d'une seconde salle d'eau avec WC et d'un WC indépendant. Grâce à sa hauteur sous plafond de 2,50 m et son agencement optimisé, cet appartement allie confort, modernité et fonctionnalité, offrant un cadre de vie idéal pour une famille ou toute personne en quête d'espace et de luminosité.

Deux parkings en SUS obligatoire complètent le bien (30 000€).

- Frais de Notaire réduits
- Garanties
- RT 2012
- Exonération de taxe Foncière
- Ascenseur
- ...

Visuel non contractuel – suggestion d'aménagement

PRESTATIONS - CONFORT - VOLUMES - EMPLACEMENT

Honoraires à la charge du vendeur. Dans une copropriété de 29 lots. Aucune procédure n'est en cours. DPE en cours. Les informations sur les risques auxquels ce bien est exposé sont disponibles sur le site Géorisques : georisques.gouv.fr.

Votre conseiller RH Patrimoine : Maxime HERVE
Agent commercial (Entreprise individuelle)
RSAC 133095555 J
RCP 13309666 J
Voir plus

Référence: VA2949-RHPATRI
Bien en copropriété. Nombre de lots : 29.
Honoraires à la charge du vendeur.
Barème des honoraires

Prêt immobilier

Vous souhaitez connaître votre capacité d’emprunt et trouver le meilleur crédit immobilier ?
Réaliser une simulation gratuite

Appartement à MERIGNAC
Appartement à MERIGNAC
Appartement à MERIGNAC
Appartement à MERIGNAC
Ce site est protégé par reCAPTCHA la Politique de confidentialité et les Conditions d’utilisation de Google s’appliquent.
Obtenir un prêt immobilier au meilleur taux ?

En poursuivant votre navigation sans modifier vos paramètres, vous acceptez l'utilisation de cookies susceptibles de réaliser des statistiques de visite. Cliquez ici pour plus d'informations