Le muy, nouvel ensemble immobilier à usage de bureaux

— Le Muy 83490 —
n.c. €
5 m²
ascenseuraccès handicapé

BAILLET IMMOBILIER, vous propose une nouvelle opportunité au MUY 83490.

En bordure de la RN7, dans un secteur en plein réaménagement routier, nouveau programme de bureaux qui débutera dès 2025.

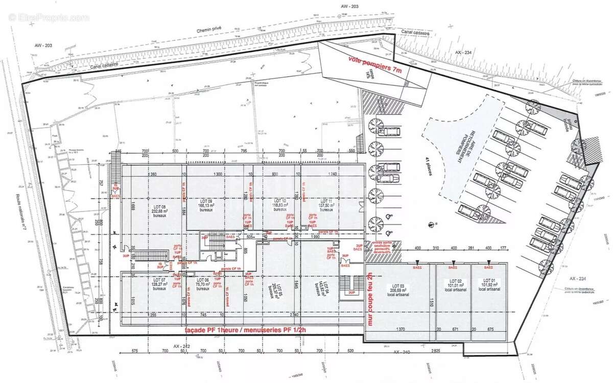
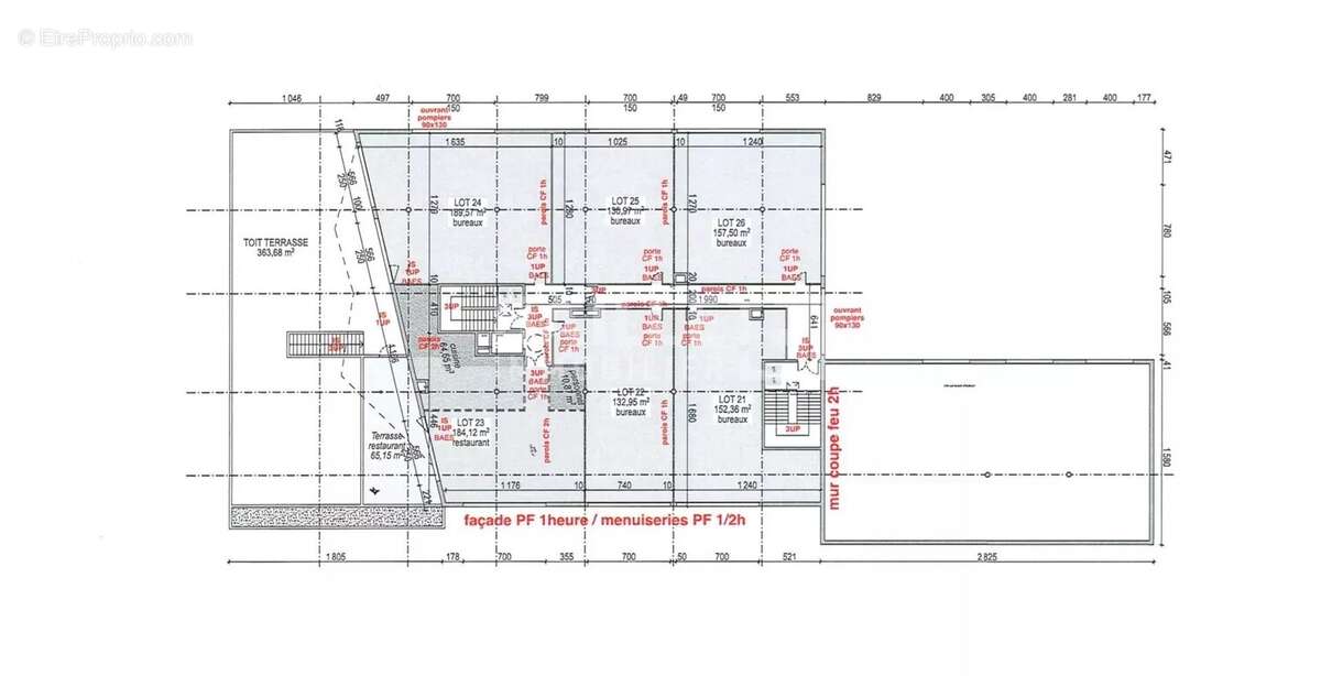
Disponibles à la vente : deux plateaux de bureaux de standing avec ascenseur, dont deux cellules avec terrasse dédiée à la restauration et une micro crèche.

Un premier plateau de 1633 m² dont 410 m² d'entrepôt avec aire de retournement.

Un plateau supérieur de 948 m², plus terrasse.

Idéal pour toutes professions libérales.

Surfaces à partir de 114 m² à 2170 m2 de 2500 € à 3400 € HT / m2, parkings compris.

BAILLET IMMOBILIER

Contact : Louis Baillet [Coordonnées masquées]
Mail : [Coordonnées masquées]

Livraison, 1er semestre 2026
Voir plus

Référence: 0731

Prêt immobilier

Vous souhaitez connaître votre capacité d’emprunt et trouver le meilleur crédit immobilier ?
Réaliser une simulation gratuite

Commerce à LE MUY
Commerce à LE MUY
Commerce à LE MUY
Commerce à LE MUY
Ce site est protégé par reCAPTCHA la Politique de confidentialité et les Conditions d’utilisation de Google s’appliquent.
Obtenir un prêt immobilier au meilleur taux ?

En poursuivant votre navigation sans modifier vos paramètres, vous acceptez l'utilisation de cookies susceptibles de réaliser des statistiques de visite. Cliquez ici pour plus d'informations