Pas de commerce à Boissy-La-Riviere pour le moment. Découvrez dès maintenant les commerces dans le département Essonne.
Bénéficiez des services de nos partenaires locaux soigneusement sélectionnés
pour vous accompagner dans votre parcours d'achat immobilier

Terrain constructible de 11 ares proche centre-village

— Hegenheim 68220 —
350 000 €
1 138 m²
jardin

Nos partenaires locaux
Localisation stratégique de cette belle parcelle de 11,38 ares (14,5 x 78m) idéalement exposée dans un environnement chaleureux aux portes de Bâle et proche du centre-village.
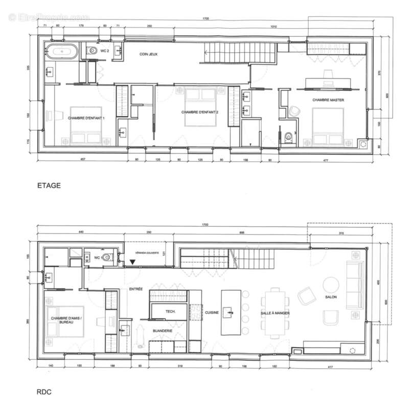
Très beau projet d’architecte de 164 m2 sur 2 niveaux, espaces contemporains pensés pour une vie familiale moderne, avec 4 chambres dont une suite master avec dressing et coin bureau, 3 salles de bains, toilettes invité, cuisine avec îlot ouvert sur salle à manger et salon spacieux + annexe carport de 30 m2.
Possibilité de transformer une chambre avec accès indépendant sur l’extérieur pour l’exercice d’une profession libérale.
Permis de construire obtenu et purgé de tout recours.
Plans validés par un Bureau Fluides (RE 2020).
Toutes les viabilités sont dans la rue de Bourgfelden.
Libre de constructeur.
Aucun coût ou frais supplémentaire pour le permis de construire inclus dans le prix de vente du terrain.
Pour tous renseignements, contactez Muriel Goetschy au [Coordonnées masquées].
Voir plus

Référence: 23355
Honoraires à la charge du vendeur.
Barème des honoraires

Prêt immobilier

Vous souhaitez connaître votre capacité d’emprunt et trouver le meilleur crédit immobilier ?
Réaliser une simulation gratuite

Terrain à HEGENHEIM
Terrain à HEGENHEIM
Terrain à HEGENHEIM
Terrain à HEGENHEIM
Ce site est protégé par reCAPTCHA la Politique de confidentialité et les Conditions d’utilisation de Google s’appliquent.
Obtenir un prêt immobilier au meilleur taux ?

En poursuivant votre navigation sans modifier vos paramètres, vous acceptez l'utilisation de cookies susceptibles de réaliser des statistiques de visite. Cliquez ici pour plus d'informations