Bénéficiez des services de nos partenaires locaux soigneusement sélectionnés
pour vous accompagner dans votre parcours d'achat immobilier

A vendre maison saint lunaire 5 pièce(s) 145.10 m²

— Saint-Lunaire 35800 —
754 560 €
145 m² / 284 m²
5 pièces
parkingbalcon/terrassejardin

Nos partenaires locaux
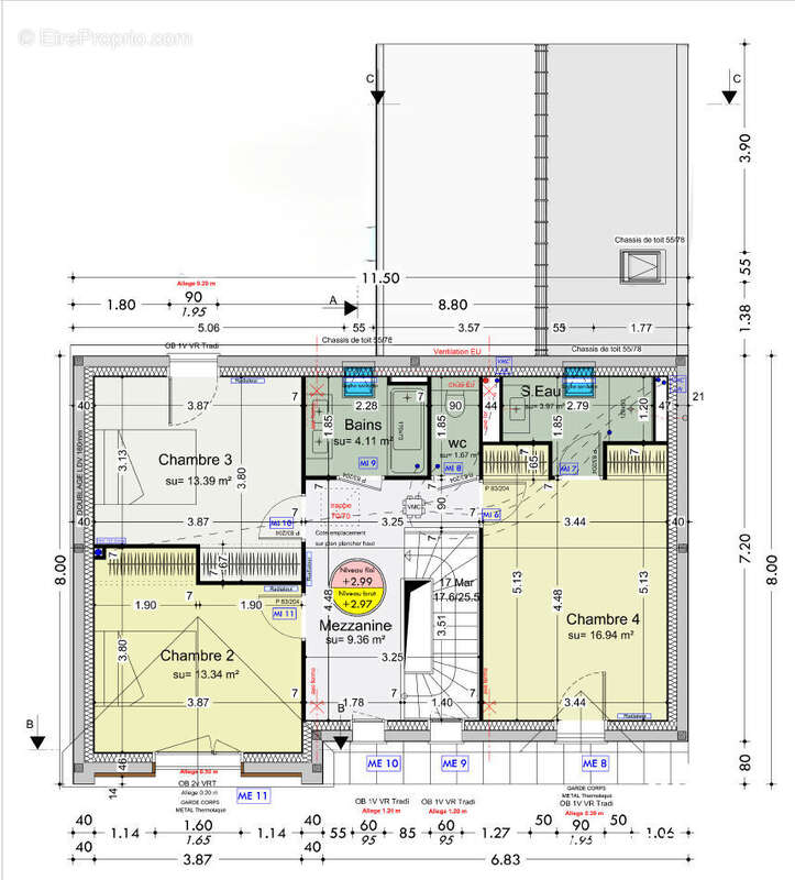
A vendre - maison en vente à terme à Saint-Lunaire Située à seulement 600 mètres de la plage de la Fourberie et à 1,1 km du premier commerce, cette maison actuellement en cours de construction offre un cadre de vie idéal entre confort et proximité avec la mer. Descriptif du bien ; Exposition Est-Ouest, cette maison aux prestations de qualité se compose de : Rez-de-chaussée : Entrée avec placard, espace cuisine ouvert sur salle à manger, salon, dégagement, buanderie, une grande chambre avec dressing, salle d'eau privative, wc A l'étage : Mezzanine, 3 chambres avec placards dont une avec salle d'eau privative, salle de bains, wc. Garage confortable, terrasse exposée Ouest, jardin clos et arboré. Profitez des dernières normes actuelles et venez poser vos valises dans cette maison, une opportunité rare sur le secteur pour une maison moderne et bien située. Frais de notaire réduits. Performances énergétiques et acoustiques aux dernières normes. Assurance dommage ouvrage. Pour plus d'informations, contactez nous : Agence Emeraude DINARD, [Coordonnées masquées] - [Coordonnées masquées] référence 7554. (4.80 % honoraires TTC à la charge de l'acquéreur.)
Voir plus

Référence: 7554
Honoraires d'agence de 4.8% à la charge de l'acquéreur
Barème des honoraires

Prêt immobilier

Vous souhaitez connaître votre capacité d’emprunt et trouver le meilleur crédit immobilier ?
Réaliser une simulation gratuite

Maison à SAINT-LUNAIRE
Maison à SAINT-LUNAIRE
Maison à SAINT-LUNAIRE
Maison à SAINT-LUNAIRE
Ce site est protégé par reCAPTCHA la Politique de confidentialité et les Conditions d’utilisation de Google s’appliquent.
Obtenir un prêt immobilier au meilleur taux ?

En poursuivant votre navigation sans modifier vos paramètres, vous acceptez l'utilisation de cookies susceptibles de réaliser des statistiques de visite. Cliquez ici pour plus d'informations