Maison 104m² à communay

— Communay 69360 —
377 000 €
104 m² / 150 m²
4 pièces
parkingbalcon/terrassejardin

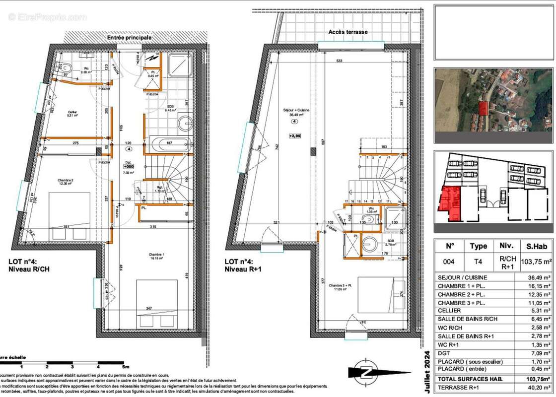
L'agence Dufossé Immobilier vous propose à 25 minutes de Lyon, 19 min de Vienne, sur la charmante commune de Communay (69360), à proximité de toutes commodités, une agréable maison contemporaine de 2024 / 2025 de type 4, moderne et confortable d'une surface de 103.75 m² répartis sur deux niveaux, avec terrasse et jardin clos, bénéficiant d'une belle vue dégagée sur les Alpes et la campagne environnante.
Cette maison exposée Est / Sud / Ouest offre un cadre de vie agréable avec une spacieuse et lumineuse pièce à vivre de 36.50 m² ouverte sur une cuisine avec accès à une vaste terrasse exposée Ouest et son jardin privatif.
L'espace nuit se compose d'une chambre parentale avec placard et salle d'eau, 2 belles chambres supplémentaires avec placards intégrés (de 11 à 16 m²), une grande salle de bains contemporaine aux finitions soignées (double vasque et sèche serviettes). Pour plus de commodité, un WC suspendu indépendant à chaque niveau, un grand cellier et de nombreux espaces de rangement complètent ce bien.
Pour accueillir vos convives en toute quiétude, ce bien est doté d'une large terrasse de 40 m² et dispose d'un jardin privatif d'environ 150 m² pour profiter du cadre verdoyant et des journées ensoleillées, de 2 places de stationnement (parking couvert) et bénéficie d'équipements de qualité.
Des prestations soignées :
- Menuiseries double vitrage alu (large baie vitrée XXL) & DV PVC
- Volets roulants électriques avec centralisation - BSO motorisé (pièce de vie)
- Pompe à chaleur PAC Air / Eau avec plancher chauffant & ECS
- Raccordement climatisation (RDC et R + 1)
- Porte d'entrée 5 points - Attente électrique pour installation store banne
- Carrelage 60x60 (pièce de vie) - Cuisine à aménager
- Carrelage effet parquet dans les chambres
- Finitions intérieures avec impression peinture livrée
- Prestations modernes, équipements et matériaux de qualité
- Garanties décennales - Dommage ouvrages
Les atouts :
- Architecture moderne et finitions de qualité
- Triple exposition pour une luminosité maximale
- Vue dégagée sur les Alpes et la campagne
- Terrasse et jardin clos pour les moments de détente
- Stationnement couvert (2 places privatives)
- Secteur résidentiel
- Emplacement idéal, à proximité de toutes commodités (commerces, écoles, pôle santé. ) et proche des principaux axes routiers (A7, A46, A47), gare à 3Kms.
IDEAL PROJET FAMILLE
Coup de coeur assuré pour cette agréable et lumineuse maison contemporaine!
Pour plus d'informations, contactez Caroline MOINE au [Coordonnées masquées].
L'immobilier Passion Caroline MOINE [Coordonnées masquées] [Coordonnées masquées].
Informations LOI ALUR :
Statut du négociateur : Agent commercial.
Honoraires charge vendeur. (gedeon_5278_30967797)
Voir plus

Référence: 12414
Honoraires à la charge du vendeur.
DPE
A
B
C
D
E
F
G
GES
A
B
C
D
E
F
G

Prêt immobilier

Vous souhaitez connaître votre capacité d’emprunt et trouver le meilleur crédit immobilier ?
Réaliser une simulation gratuite

Photo 1 - Maison à COMMUNAY
Photo 1
Photo 2 - Maison à COMMUNAY
Photo 2
Photo 3 - Maison à COMMUNAY
Photo 3
Photo 4 - Maison à COMMUNAY
Photo 4
Photo 5 - Maison à COMMUNAY
Photo 5
Photo 6 - Maison à COMMUNAY
Photo 6
Photo 7 - Maison à COMMUNAY
Photo 7
Ce site est protégé par reCAPTCHA la Politique de confidentialité et les Conditions d’utilisation de Google s’appliquent.
Obtenir un prêt immobilier au meilleur taux ?

En poursuivant votre navigation sans modifier vos paramètres, vous acceptez l'utilisation de cookies susceptibles de réaliser des statistiques de visite. Cliquez ici pour plus d'informations