Bénéficiez des services de nos partenaires locaux soigneusement sélectionnés
pour vous accompagner dans votre parcours d'achat immobilier

Appartement t3 46 m2 - fontenay-sous-bois village

— Fontenay-Sous-Bois 94120 —
315 790 €
46 m²
3 pièces

Nos partenaires locaux
À Vendre : Appartement T3 46 m2 - Fontenay-sous-Bois Village
Description :

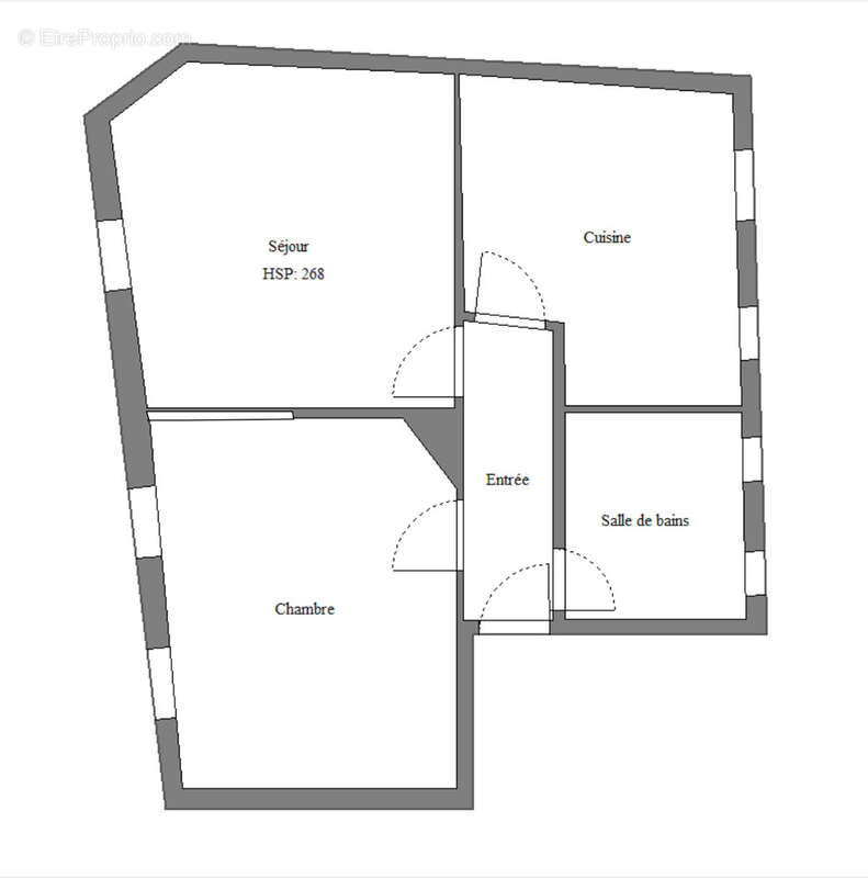
Appartement T3 de 46 m2 situé au 2ème étage sur 3.
Appartement traversant, très dégagé, orienté EST - OUEST et très lumineux,
Idéalement situé rue Notre-Dame, à Fontenay-sous-Bois.
Proximité: RER A, Métro 1, Bois de Vincennes, marchés (Fontenay, Nogent sur Marne), commerces, parcs (parc floral, Château de Vincennes, Porte Jaune, Tremblay) etc
Travaux : possibilité de créer un duplex ou un triplex avec le 1er et le 3ème étage (en vente, plans identiques), intégration des parties communes (surface 6 m2 / étage + escalier)
INFORMATIONS SUPPLEMENTAIRES: Immeuble complet en vente avec commerce au RDC et trois appartements (+ cave attenant au commerce)
Vendu loué : 840 €/mois (inférieur au marché, succession), fin du bail le 06/12/2026
Estimation du loyer : 1 100 €/mois (hors charges)
DPE : F GES ; E
Proximité écoles, collèges, Lycées


Coût annuel énergétique estimé : entre 1 450 € et 1 950 €.
Le prix du m2 pour les appartements dans cette rue varie entre 6 657 € et 9 414 €, avec une moyenne de 7 677 €
Prix de vente 315 790 € soit 6 865 €/m2

Contactez-nous dès aujourd'hui pour organiser une visite et découvrir le potentiel de cet appartement !
Entrée 3.22.
Salle de bains 4.49
Séjour - Cuisine 25.69 (Lumineux et accueillant avec 3 fenêtres)
Chambre 12.37 (Une chambre confortable avec 2 fenêtres)

Les informations sur ri-sques auxquels ce bien est exposé sont disponibles sur Géorisques: http://georisques.gouv.fr

Le prix de vente total est de 315 790 euros
Contact Marc-Antoine : [Coordonnées masquées]
Voir plus

Bien en copropriété. Nombre de lots : 4.
Honoraires à la charge du vendeur.
Barème des honoraires
DPE
A
B
C
D
E
F
G
GES
A
B
C
D
E
F
G

Prêt immobilier

Vous souhaitez connaître votre capacité d’emprunt et trouver le meilleur crédit immobilier ?
Réaliser une simulation gratuite

Appartement à FONTENAY-SOUS-BOIS
Appartement à FONTENAY-SOUS-BOIS
Appartement à FONTENAY-SOUS-BOIS
Appartement à FONTENAY-SOUS-BOIS
Appartement à FONTENAY-SOUS-BOIS
Appartement à FONTENAY-SOUS-BOIS
Appartement à FONTENAY-SOUS-BOIS
Appartement à FONTENAY-SOUS-BOIS
Appartement à FONTENAY-SOUS-BOIS
Appartement à FONTENAY-SOUS-BOIS
Appartement à FONTENAY-SOUS-BOIS
Ce site est protégé par reCAPTCHA la Politique de confidentialité et les Conditions d’utilisation de Google s’appliquent.
Obtenir un prêt immobilier au meilleur taux ?

En poursuivant votre navigation sans modifier vos paramètres, vous acceptez l'utilisation de cookies susceptibles de réaliser des statistiques de visite. Cliquez ici pour plus d'informations