Bénéficiez des services de nos partenaires locaux soigneusement sélectionnés
pour vous accompagner dans votre parcours d'achat immobilier

Villa à rénover - emplacement exceptionnel - vue mer panoramique

— Roquebrune-Cap-Martin 06190 —
1 190 000 €
192 m²
7 pièces
parkingbalcon/terrasse

Nos partenaires locaux
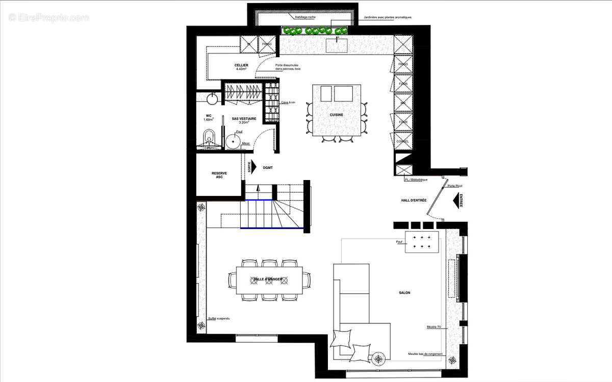
Au cœur du quartier résidentiel recherché du Hameau de Roquebrune-Cap-Martin, villa de 192 m2 habitables(182,52 carrez), répartis sur trois niveaux avec permis de construire validé permettant d’envisager sa métamorphose en une résidence contemporaine d’exception, avec piscine suspendue et vue mer à couper le souffle.
Le rez-de-chaussée accueillera un spacieux garage de 36 m2 une place de stationnement extérieure et un carport, une chambre en suite avec accès indépendant, une salle de sport ainsi que des espaces de service tels qu'une buanderie et une grande cave.
À l’étage intermédiaire, une vaste pièce de vie prendra place : cuisine semi-ouverte, double salon et salle à manger s’articuleront harmonieusement autour d’une terrasse monumentale intégrant la piscine et un espace bain de soleil.
L’étage supérieur, dédié à l’espace nuit, proposera une suite parentale élégante et deux autres chambres confortables, complétées par une salle de bains et un dressing.
L’ensemble de la villa sera desservi par un ascenseur. Édifiée sur un terrain privatif de 1 400 m2, elle se situe au sein d’un domaine privé et sécurisé avec piscine, à proximité immédiate de Monaco.
Une vue mer panoramique vient sublimer ce cadre privilégié.
Le dossier complet de rénovation (plans, devis, visuels 3D) est disponible sur simple demande.
Voir plus

Référence: 1033
Bien en copropriété. Nombre de lots : 16. Charges de copropriété : 133 €.
Honoraires à la charge du vendeur.
Barème des honoraires
DPE
A
B
C
D
E
F
G
GES
A
B
C
D
E
F
G

Prêt immobilier

Vous souhaitez connaître votre capacité d’emprunt et trouver le meilleur crédit immobilier ?
Réaliser une simulation gratuite

Maison à ROQUEBRUNE-CAP-MARTIN
Maison à ROQUEBRUNE-CAP-MARTIN
Maison à ROQUEBRUNE-CAP-MARTIN
Maison à ROQUEBRUNE-CAP-MARTIN
Maison à ROQUEBRUNE-CAP-MARTIN
Maison à ROQUEBRUNE-CAP-MARTIN
Maison à ROQUEBRUNE-CAP-MARTIN
Maison à ROQUEBRUNE-CAP-MARTIN
Maison à ROQUEBRUNE-CAP-MARTIN
Maison à ROQUEBRUNE-CAP-MARTIN
Maison à ROQUEBRUNE-CAP-MARTIN
Maison à ROQUEBRUNE-CAP-MARTIN
Maison à ROQUEBRUNE-CAP-MARTIN
Maison à ROQUEBRUNE-CAP-MARTIN
Maison à ROQUEBRUNE-CAP-MARTIN
Maison à ROQUEBRUNE-CAP-MARTIN
Maison à ROQUEBRUNE-CAP-MARTIN
Maison à ROQUEBRUNE-CAP-MARTIN
Maison à ROQUEBRUNE-CAP-MARTIN
Maison à ROQUEBRUNE-CAP-MARTIN
Maison à ROQUEBRUNE-CAP-MARTIN
Maison à ROQUEBRUNE-CAP-MARTIN
Maison à ROQUEBRUNE-CAP-MARTIN
Maison à ROQUEBRUNE-CAP-MARTIN
Maison à ROQUEBRUNE-CAP-MARTIN
Maison à ROQUEBRUNE-CAP-MARTIN
Maison à ROQUEBRUNE-CAP-MARTIN
Ce site est protégé par reCAPTCHA la Politique de confidentialité et les Conditions d’utilisation de Google s’appliquent.
Obtenir un prêt immobilier au meilleur taux ?

En poursuivant votre navigation sans modifier vos paramètres, vous acceptez l'utilisation de cookies susceptibles de réaliser des statistiques de visite. Cliquez ici pour plus d'informations