Bénéficiez des services de nos partenaires locaux soigneusement sélectionnés
pour vous accompagner dans votre parcours d'achat immobilier

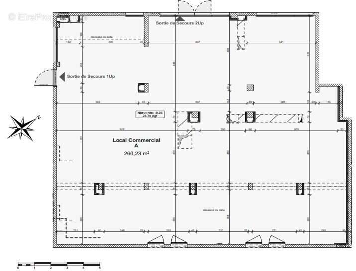
Commerce 260m² à caen

— Caen 14000 —
492 900 €
260 m²

Nos partenaires locaux
Opportunité rare présentée par TH2CT ! Local commercial de 260,35 m² en pied d'immeuble, idéal pour une activité dynamique et visible. Possibilité d'acquérir 2 stationnements en sous-sol en sus.

? Emplacement stratégique – Situé Place de la Liberté, à 5 min de l'hypercentre de Caen, le local bénéficie d'une excellente accessibilité avec l'arrêt de tram “Liberté” au pied de l'immeuble.

? Un quartier en renouveau – Intégré au programme CONNEXION, figure de proue de la transformation urbaine du secteur, ce local profite d'un environnement résidentiel neuf (40 logements) et d'une dynamique commerciale forte : supermarché, boulangerie, pharmacie, crèche…

? Livré brut de béton – Ce local est proposé en l'état brut de béton, offrant une grande flexibilité pour l'aménagement intérieur selon vos besoins spécifiques.

? Visibilité & potentiel – Un emplacement idéal pour attirer une clientèle locale et de passage, dans un secteur bénéficiant d'un fort développement.

Conditions Financières de la vente:

Prix Net vendeur: 469 400 € HT
Honoraires agences en sus: 5% HT charge acquéreur

Pour toutes questions ou visite, n hésitez pas à m appeler: Matthieu PARISOT au [Coordonnées masquées]



Honoraires inclus de 5.01% HT à la charge de l'acquéreur. Prix hors honoraires 469 400 € HT. Dans une copropriété de 1 lots. Aucune procédure n'est en cours. Non soumis au DPE. Les informations sur les risques auxquels ce bien est exposé sont disponibles sur le site Géorisques : georisques.gouv.fr.

Votre conseiller TH2 C&T : Matthieu PARISOT
Agent commercial (Entreprise individuelle)
Voir plus

Référence: VP378-TH2
Bien en copropriété. Nombre de lots : 1.
Honoraires d'agence de 5.01% à la charge de l'acquéreur
Barème des honoraires

Prêt immobilier

Vous souhaitez connaître votre capacité d’emprunt et trouver le meilleur crédit immobilier ?
Réaliser une simulation gratuite

Commerce à CAEN
Commerce à CAEN
Commerce à CAEN
Commerce à CAEN
Commerce à CAEN
Commerce à CAEN
Ce site est protégé par reCAPTCHA la Politique de confidentialité et les Conditions d’utilisation de Google s’appliquent.
Obtenir un prêt immobilier au meilleur taux ?

En poursuivant votre navigation sans modifier vos paramètres, vous acceptez l'utilisation de cookies susceptibles de réaliser des statistiques de visite. Cliquez ici pour plus d'informations