Maison parfait état avec superbe cadre dpe c

— Breux-Sur-Avre 27570 —
249 000 €
130 m²
5 pièces
parkingbalcon/terrassejardin

Découvrez cette magnifique maison située entre Verneuil et Nonancourt, dans la charmante vallée de l'Avre. Avec une superficie de 130 m², elle offre de beaux volumes et un cadre de vie idéal pour toute la famille.

Un extérieur enchanteur
Implantée sur un vaste terrain clos avec jardin paysager de 5 970 m², parfait pour profiter des journées ensoleillées.
Une terrasse spacieuse orientée plein sud vous permettra d'organiser des repas en plein air tout en admirant la vue sur votre propre havre de paix.

Un intérieur confortable et fonctionnel

Rez-de-chaussée :
Une cuisine aménagée et équipée ouverte sur un salon-salle à manger équipé d'un poêle cheminée Godin.
Une salle de bain avec douche, baignoire d'angle et grand placard de rangement ainsi qu'un WC séparé.
Un double garage intérieur de 37 m², offrant un espace de rangement et de stationnement pratique pour 2 véhicules ou tout simplement agrandir la maison.

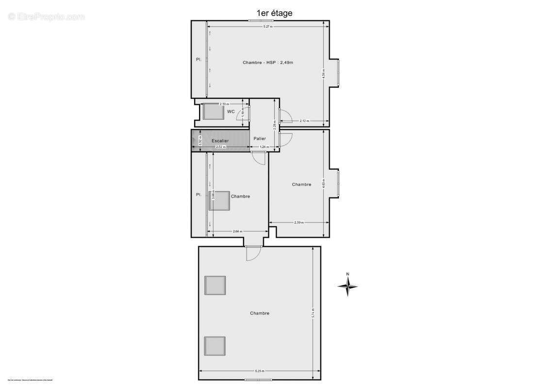
Étage :
Trois chambres spacieuses dont une de 30 m2 avec la possibilité de la diviser en 2 espaces ou en faire un dortoir.
Un bureau lumineux.
Un WC avec lave-mains.

Des équipements pratiques
En plus du double garage intérieur accolé à la maison, un garage en bois fermé avec espace atelier fermé et carport tout en bois est installé à l'entrée de la propriété.

Un emplacement privilégié
Située à 4 min en voiture du centre ville de Tillières, des commodités et écoles locales mais aussi à 14 min de la gare de Verneuil ou 1h15 de paris en passant par la N12, cette maison combine à la perfection le calme de la campagne et une accessibilité urbaine.

Cette propriété vous est présentée au prix de 249 000 euros (dont honoraires 3,5% inclus à la charge du vendeur : 8 715€ ), soit 240 285 euros hors honoraires. Référence annonce : DOM11000.

Date de réalisation du diagnostic : 08/06/2022. Montant estimé des dépenses annuelles d'énergie pour un usage standard : entre 1320 € et 1810 € par an. Prix moyens des énergies indexés sur l'année 2021 (abonnements compris).

Les informations sur les risques auxquels ce bien est exposé sont disponibles sur le site Géorisques : https://www.georisques.gouv.fr. Pour l'organisation de la visite, la présentation d'une pièce d'identité vous sera demandée. Cette présente annonce a été rédigée sous la responsabilité éditoriale de Marie ALEXANDRE agissant en qualité de conseillère immobilier indépendante - Numéro RSAC 494 704 828 Evreux - auprès de La Société par Actions Simplifiée Liberkeys au capital social de 52 521€. Immatriculée le 29 juin 2017 au numéro de Siret 83[Coordonnées masquées]08 (RCS Paris)
Voir plus

Référence: DOM11000
Honoraires à la charge du vendeur.
DPE
A
B
C
D
E
F
G
GES
A
B
C
D
E
F
G

Prêt immobilier

Vous souhaitez connaître votre capacité d’emprunt et trouver le meilleur crédit immobilier ?
Réaliser une simulation gratuite

Maison à BREUX-SUR-AVRE
Maison à BREUX-SUR-AVRE
Maison à BREUX-SUR-AVRE
Maison à BREUX-SUR-AVRE
Maison à BREUX-SUR-AVRE
Maison à BREUX-SUR-AVRE
Maison à BREUX-SUR-AVRE
Maison à BREUX-SUR-AVRE
Maison à BREUX-SUR-AVRE
Maison à BREUX-SUR-AVRE
Maison à BREUX-SUR-AVRE
Maison à BREUX-SUR-AVRE
Maison à BREUX-SUR-AVRE
Maison à BREUX-SUR-AVRE
Maison à BREUX-SUR-AVRE
Maison à BREUX-SUR-AVRE
Maison à BREUX-SUR-AVRE
Ce site est protégé par reCAPTCHA la Politique de confidentialité et les Conditions d’utilisation de Google s’appliquent.
Obtenir un prêt immobilier au meilleur taux ?

En poursuivant votre navigation sans modifier vos paramètres, vous acceptez l'utilisation de cookies susceptibles de réaliser des statistiques de visite. Cliquez ici pour plus d'informations