Bénéficiez des services de nos partenaires locaux soigneusement sélectionnés
pour vous accompagner dans votre parcours d'achat immobilier

À saisir sans plus attendre : appartement 5 pièces de charme au calme - 105 m² - nation

— Paris-12e 75012 —
1 040 000 €
104 m²
4 pièces
ascenseur

Nos partenaires locaux
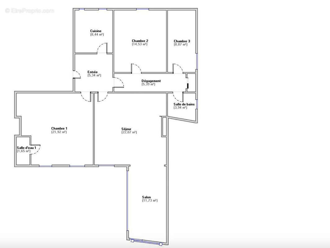
Hauteur sous plafond exceptionnelle de 3,80 mètres, une cheminée monumentale, un Poele prussien, de magnifiques moulures et du parquet d'époque dans toutes les pièces ce bien est un véritable coup de Coeur! Dans un passage sécurisé, privé et calme à deux pas de la Place de la Nation et de toutes ses commodités, découvrez ce superbe appartement de 103,88 m² (106m2 au sol) traversant, situé au 1er étage d'une petite copropriété bien entretenue (ravalement extérieur récent). Les pièces des vie donnent sur le passage et les autres pièces sur une cour arborée. Ce bien lumineux et plein de cachet se compose comme suit : Une belle entrée, Un vaste séjour avec cheminée, trois chambres dont 2 très spacieuses, une véranda baignée de lumière, idéale pour un espace détente ou un bureau, une cuisine dinatoire indépendante, une salle de bain, une salle d'eau attenante a l'une des grandes chambres. Idéalement desservi par les lignes 1, 2, 6, 9 du métro et le RER A, cet appartement offre un cadre de vie privilégié au coeur de Paris. Des travaux de rafraîchissement permettront de révéler son incroyable potentiel. Ce bien est RARE et ne sera plus disponible très rapidement. Une visite s'impose ! Contactez Hugues au [Coordonnées masquées] pour plus d'informations. Copropriété de 47 lots - dont 22 lots habitation. (Pas de procédure en cours). Charges annuelles : 2124 euros.
Voir plus

Référence: 87
Bien en copropriété. Nombre de lots : 47. Charges de copropriété : 2124 €.
Honoraires à la charge du vendeur.
Barème des honoraires
DPE
A
B
C
D
E
F
G
GES
A
B
C
D
E
F
G

Prêt immobilier

Vous souhaitez connaître votre capacité d’emprunt et trouver le meilleur crédit immobilier ?
Réaliser une simulation gratuite

Appartement à PARIS-12E
Appartement à PARIS-12E
Appartement à PARIS-12E
Appartement à PARIS-12E
Appartement à PARIS-12E
Appartement à PARIS-12E
Appartement à PARIS-12E
Appartement à PARIS-12E
Appartement à PARIS-12E
Appartement à PARIS-12E
Appartement à PARIS-12E
Appartement à PARIS-12E
Appartement à PARIS-12E
Appartement à PARIS-12E
Appartement à PARIS-12E
Appartement à PARIS-12E
Appartement à PARIS-12E
Appartement à PARIS-12E
Ce site est protégé par reCAPTCHA la Politique de confidentialité et les Conditions d’utilisation de Google s’appliquent.
Obtenir un prêt immobilier au meilleur taux ?

En poursuivant votre navigation sans modifier vos paramètres, vous acceptez l'utilisation de cookies susceptibles de réaliser des statistiques de visite. Cliquez ici pour plus d'informations