Bénéficiez des services de nos partenaires locaux soigneusement sélectionnés
pour vous accompagner dans votre parcours d'achat immobilier

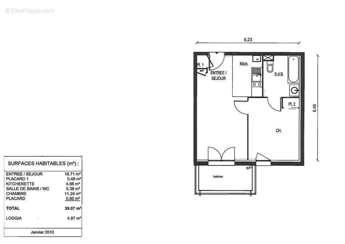
Appartement 39m² à saint-quentin

— Saint-Quentin 02100 —
56 500 €
39 m²
2 pièces
parkingbalcon/terrasse

Nos partenaires locaux
Forom Immobilier vous propose en exclusivité cet appartement T2 d'une surface de 39,07 m² situé au rez de chaussée, dans une résidence récente et sécurisée sur la commune de Saint-Quentin.

Actuellement loué 480€ CC, date de fin de bail : 17/01/2028.

Idéal investissement locatif, rentabilité brute 10,19% !

Ce bien se compose de la façon suivante : un séjour donnant sur le balcon, une cuisine, une chambre, une salle d'eau avec un WC, un balcon et une place de parking.

Ses principaux atouts : - Résidence sécurisée - Espaces verts - Une place de parking aérienne.

Informations clés : - Chauffage au gaz et Eau chaude individuelle au gaz - Nombre de lots : 77 - Diagnostic de Performance Énergétique : C - Montant des charges annuelles : 431€ - Taxe Foncière 2025 : 1 354€.

Honoraires charges vendeur.

Honoraires à la charge du vendeur. Dans une copropriété de 77 lots. Quote-part moyenne du budget prévisionnel 324 €/an. Aucune procédure n'est en cours. Classe énergie C, Classe climat C Montant moyen estimé des dépenses annuelles d'énergie pour un usage standard, établi à partir des prix de l'énergie de l'année 2021 : entre 390.00 et 590.00 €. Les informations sur les risques auxquels ce bien est exposé sont disponibles sur le site Géorisques : georisques.gouv.fr.
Voir plus

Référence: 3865-FOROM
Bien en copropriété. Nombre de lots : 77. Charges de copropriété : 324 €.
Honoraires à la charge du vendeur.
Barème des honoraires
DPE
A
B
C
D
E
F
G
GES
A
B
C
D
E
F
G

Prêt immobilier

Vous souhaitez connaître votre capacité d’emprunt et trouver le meilleur crédit immobilier ?
Réaliser une simulation gratuite

Appartement à SAINT-QUENTIN
Appartement à SAINT-QUENTIN
Appartement à SAINT-QUENTIN
Appartement à SAINT-QUENTIN
Appartement à SAINT-QUENTIN
Appartement à SAINT-QUENTIN
Appartement à SAINT-QUENTIN
Appartement à SAINT-QUENTIN
Appartement à SAINT-QUENTIN
Ce site est protégé par reCAPTCHA la Politique de confidentialité et les Conditions d’utilisation de Google s’appliquent.
Obtenir un prêt immobilier au meilleur taux ?

En poursuivant votre navigation sans modifier vos paramètres, vous acceptez l'utilisation de cookies susceptibles de réaliser des statistiques de visite. Cliquez ici pour plus d'informations