Bénéficiez des services de nos partenaires locaux soigneusement sélectionnés
pour vous accompagner dans votre parcours d'achat immobilier

Appartement

— Nantes 44000 —
148 429 €
42 m²
2 pièces
parking

Nos partenaires locaux
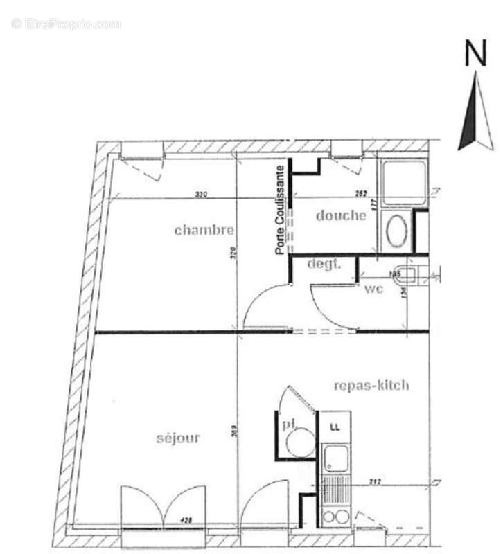
SAINT JOSEPH - Dans une petite résidence 2011, belles prestations pour cet appartement comprenant séjour avec cuisine semi-séparée donnant sur un rez de jardinet exposé plein Sud, un dégagement distribuant une chambre avec une salle d'eau attenante, wc séparé.

Référence: GB00193013
Bien en copropriété.
DPE
A
B
C
D
E
F
G
GES
A
B
C
D
E
F
G

Prêt immobilier

Vous souhaitez connaître votre capacité d’emprunt et trouver le meilleur crédit immobilier ?
Réaliser une simulation gratuite

Appartement à NANTES
Appartement à NANTES
Appartement à NANTES
Ce site est protégé par reCAPTCHA la Politique de confidentialité et les Conditions d’utilisation de Google s’appliquent.
Obtenir un prêt immobilier au meilleur taux ?

En poursuivant votre navigation sans modifier vos paramètres, vous acceptez l'utilisation de cookies susceptibles de réaliser des statistiques de visite. Cliquez ici pour plus d'informations