Murs hôtel restaurant

— Cazaubon 32150 —
450 000 €
556 m²
20 pièces
parkingbalcon/terrasse

Dans station thermale réputée du Gers , vente des murs d'un hôtel-restaurant classé 2 étoiles, actuellement exploité sous un bail commercial professionnel. L'établissement situé proche d'un axe très passager se compose de la manière suivante:

- Une salle de restaurant climatisée d'environ 35 places, s'étendant sur une superficie de 120 m², ainsi qu'une terrasse pouvant accueillir entre 15 et 20 convives.

- Une cuisine professionnelle, une réserve, et une salle d'accueil dédiée à la partie hôtel.

- Un garage pour deux voitures et un parking.

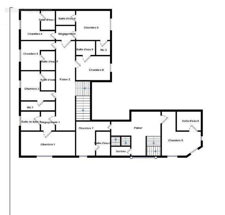
À l'étage, l'hôtel dispose de 8 chambres, accompagnées d'un logement de fonction de 62.59 m² type T3.

La partie actuellement occupée par le propriétaire comprend :

- Un appartement de type T4 avec salon, salle à manger, une cuisine séparé et équipé, trois chambres avec placard mural, une salle de bain, une salle d'eau et un WC séparé, l'ensemble, situé au premier étage, d'une superficie de 132.07 m² et disposant d'un poêle à granulé ainsi que d'une climatisation. Par ailleurs, cet appartement dispose aussi d'un jardin privatif de 650 m2 et d'un bassin d'agrément.

- Un studio meublé et climatisé en rez-de-chaussée, d'une surface de 25.55 m², avec un jardin attenant.

RENTABILITÉ LOCATIVE:

( Hôtel restaurant + Studio ) = 20 380 E par an.

POSSIBILITÉ de louer l'appartement Type T4 / 800E par mois.

Les informations sur les risques auxquels ce bien est exposé sont disponibles sur le site Géorisques : www. georisques. gouv. fr.

Pour plus d'informations et pour une visite, contactez Hervé DESPLAT : CLAIRIMMO Barbotan - 3 avenue des Thermes 32150 CAZAUBON - Service Transaction : [Coordonnées masquées] Service Location : [Coordonnées masquées] email : [Coordonnées masquées] RCS 851 986 620 Agent commercial indépendant du réseau national Clairimmo N° RSAC : 495 108 755
Voir plus

Référence: 11429DQ612
Honoraires à la charge du vendeur.
GES
A
B
C
D
E
F
G

Prêt immobilier

Vous souhaitez connaître votre capacité d’emprunt et trouver le meilleur crédit immobilier ?
Réaliser une simulation gratuite

Commerce à CAZAUBON
Commerce à CAZAUBON
Commerce à CAZAUBON
Commerce à CAZAUBON
Commerce à CAZAUBON
Commerce à CAZAUBON
Commerce à CAZAUBON
Commerce à CAZAUBON
Commerce à CAZAUBON
Commerce à CAZAUBON
Commerce à CAZAUBON
Commerce à CAZAUBON
Commerce à CAZAUBON
Commerce à CAZAUBON
Commerce à CAZAUBON
Commerce à CAZAUBON
Commerce à CAZAUBON
Commerce à CAZAUBON
Commerce à CAZAUBON
Commerce à CAZAUBON
Commerce à CAZAUBON
Commerce à CAZAUBON
Commerce à CAZAUBON
Commerce à CAZAUBON
Commerce à CAZAUBON
Commerce à CAZAUBON
Commerce à CAZAUBON
Commerce à CAZAUBON
Commerce à CAZAUBON
Commerce à CAZAUBON
Ce site est protégé par reCAPTCHA la Politique de confidentialité et les Conditions d’utilisation de Google s’appliquent.
Obtenir un prêt immobilier au meilleur taux ?

En poursuivant votre navigation sans modifier vos paramètres, vous acceptez l'utilisation de cookies susceptibles de réaliser des statistiques de visite. Cliquez ici pour plus d'informations