Bénéficiez des services de nos partenaires locaux soigneusement sélectionnés
pour vous accompagner dans votre parcours d'achat immobilier

Exclusif lozanne bâtiment à renover

— Lozanne 69380 —
190 000 €
140 m² / 1 375 m²
5 pièces

Nos partenaires locaux
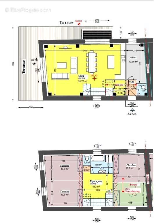
EXCLUSIVITE -Centre Lozanne, issu d'une division de propriété en 2 lots bâtiment à rénover d'environ 140 m² sur une parcelle de terrain de 1375 m².
Un permis de construire est accepté pour une habitation composé d'un séjour cuisine , 4 chambres , une salle d'eau et une salle de bains.
une cave voûtée de 35m2.
les viabilités sont en bordure eau électricité égout.
Pour plus de renseignements contacter AGENCE PIERRES DOREES-IMMOBILIERE DES BROTTEAUX

Les informations sur les risques auxquels ce bien est exposé sont disponibles sur le site Géorisques : www.georisques.gouv.fr
Voir plus

Référence: 6775
Honoraires à la charge du vendeur.

Prêt immobilier

Vous souhaitez connaître votre capacité d’emprunt et trouver le meilleur crédit immobilier ?
Réaliser une simulation gratuite

Maison à LOZANNE
Maison à LOZANNE
Maison à LOZANNE
Ce site est protégé par reCAPTCHA la Politique de confidentialité et les Conditions d’utilisation de Google s’appliquent.
Obtenir un prêt immobilier au meilleur taux ?

En poursuivant votre navigation sans modifier vos paramètres, vous acceptez l'utilisation de cookies susceptibles de réaliser des statistiques de visite. Cliquez ici pour plus d'informations